Terrain 1121m² à auterive

— Auterive 31190 —
128 000 €
1 121 m²

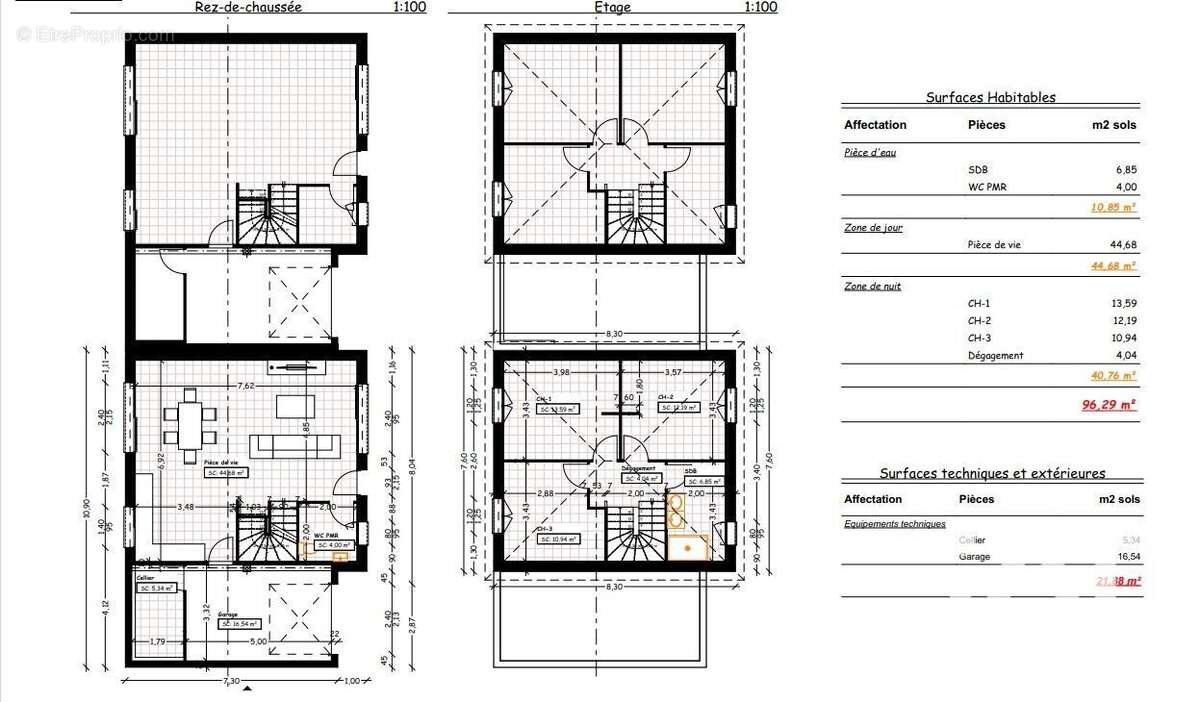
Iad France - Olivier Llopis vous propose : Terrain à bâtir à Auterive - 1121.25 m² - Exposition Sud - Viabilisé - Permis de construire Accordé pour la construction de 4 Maisons R + 1.

Vous rêvez d'investir sur une commune en plein essor ? Ce terrain à bâtir de 1121.25 m² est l'opportunité parfaite pour concrétiser votre projet immobilier.

Situation : Ce terrain bénéficie d'une exposition sud, offrant un ensoleillement optimal tout au long de la journée. Niché dans un quartier calme et résidentiel, à proximité des commodités et des écoles, il offre un cadre de vie idéal pour votre future projet.

Viabilité : Le terrain est viabilisé, raccordé aux réseaux d'électricité, d'eau potable et d'assainissement. Les démarches administratives liées à la viabilisation ont déjà été effectuées, vous permettant de démarrer rapidement vos travaux de construction.

Permis de construire : La parcelle est prête à accueillir votre projet immobilier. Le permis de construire est validé, vous permettant de démarrer immédiatement, gain de temps énorme et toutes les procédures administratives sont faites.

Environnement : Entouré de verdure, ce terrain offre un véritable havre de paix, idéal pour créer un espace de vie harmonieux pour les familles. Les écoles et le centre ville sont à 2 pas.

Opportunité rare sur le marché, ne laissez pas passer cette occasion unique de bâtir le projet de vos rêves à Auterive. Des devis ont déjà été réalisés par les partenaires afin de vous projeter immédiatement. Contactez-nous dès maintenant pour plus d'informations et pour organiser une visite sur place.

Honoraires d'agence à la charge du vendeur.
Bien non soumis au DPE. Les informations sur les risques auxquels ce bien est exposé, y compris l'obligation légale de débroussaillement, sont disponibles sur le site Géorisques : http://www.georisques.gouv.fr.
La présente annonce immobilière a été rédigée sous la responsabilité éditoriale de M Olivier Llopis mandataire indépendant en immobilier (sans détention de fonds), agent commercial de la SAS I@D France immatriculé au RSAC de Toulouse sous le numéro 510176977, titulaire de la carte de démarchage immobilier pour le compte de la société I@D France SAS.
Informations LOI ALUR :
Honoraires charge vendeur. (gedeon_6727_32247883)
Voir plus

Référence: 1899817
Honoraires à la charge du vendeur.

Prêt immobilier

Vous souhaitez connaître votre capacité d’emprunt et trouver le meilleur crédit immobilier ?
Réaliser une simulation gratuite

Photo 1 - Terrain à AUTERIVE
Photo 1
Photo 2 - Terrain à AUTERIVE
Photo 2
Photo 3 - Terrain à AUTERIVE
Photo 3
Photo 4 - Terrain à AUTERIVE
Photo 4
Photo 5 - Terrain à AUTERIVE
Photo 5
Photo 6 - Terrain à AUTERIVE
Photo 6
Photo 7 - Terrain à AUTERIVE
Photo 7
Photo 8 - Terrain à AUTERIVE
Photo 8
Photo 9 - Terrain à AUTERIVE
Photo 9
Ce site est protégé par reCAPTCHA la Politique de confidentialité et les Conditions d’utilisation de Google s’appliquent.
Obtenir un prêt immobilier au meilleur taux ?

En poursuivant votre navigation sans modifier vos paramètres, vous acceptez l'utilisation de cookies susceptibles de réaliser des statistiques de visite. Cliquez ici pour plus d'informations