Bénéficiez des services de nos partenaires locaux soigneusement sélectionnés
pour vous accompagner dans votre parcours d'achat immobilier

Appartement 92m² à gujan-mestras

— Gujan-Mestras 33470 —
581 000 €
92 m²
4 pièces
parking

Nos partenaires locaux
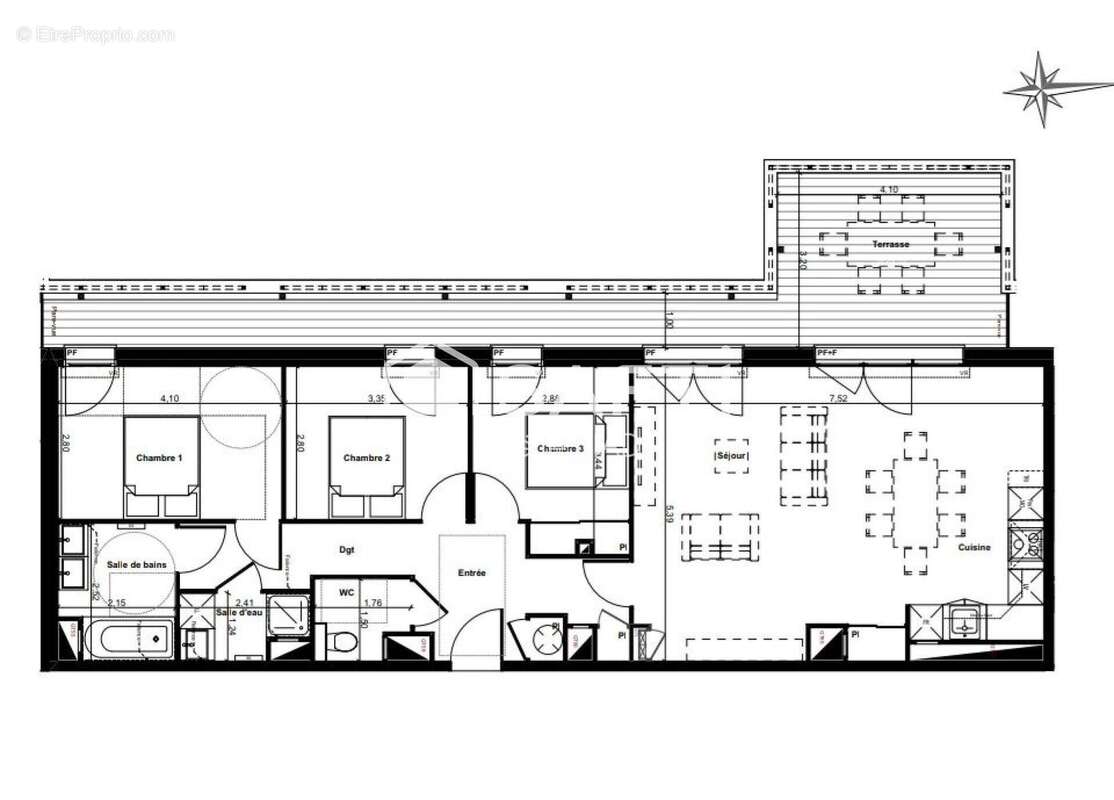
Situé dans la charmante ville de Gujan-Mestras, cet appartement bénéficie d'un emplacement privilégié proche des commodités et des activités locales. La ville animée offre un cadre de vie agréable, avec ses commerces, restaurants et proximité avec le bassin d'Arcachon, idéal pour les amoureux de la nature et de la mer.

Doté de 2 places de parking en sous-sol, cet appartement de 91 m² propose un espace extérieur attrayant avec une terrasse spacieuse de 26,65 m². Parfait pour profiter des journées ensoleillées et des douces soirées d'été, cet espace extérieur offre un coin de détente et de convivialité en plein air.

À l'intérieur, ce bien neuf offre un agencement moderne et fonctionnel. L'entrée s'ouvre sur un séjour lumineux avec une cuisine ouverte de 51,60 m², offrant un espace de vie convivial. Les 3 chambres, allant de 9,14 m² à 11,48 m², offrent des espaces de repos
confortables, ce bien est idéal pour une famille ou des amateurs d'espace et de modernité.
Livraison prévue en juin 2026.

Le bien comprend 3 lots, et il est situé dans une copropriété de 51 lots (les charges courantes annuelles moyennes de copropriété sont de 1 ¤ et le syndicat des copropriétaires ne fait pas l'objet d'une procédure citée à l'article L. 721-1 du code de la construction et de l'habitation).

Les informations sur les risques auxquels ce bien est exposé sont disponibles sur le site Géorisques : www.georisques.gouv.fr
Prix de vente : 581 000 ¤
Honoraires charge vendeur

Contactez votre conseiller SAFTI : Gaëlle SIAD, Tél. : [Coordonnées masquées], E-mail : [Coordonnées masquées] - EI - Agent commercial immatriculé au RSAC de BORDEAUX sous le numéro 803378173.
Informations LOI ALUR :
Soumis au régime de copropriété.
Nombre de lots : 51.
Quote part annuelle(moyenne) : 1 euros.
Honoraires charge vendeur. (gedeon_26118_32247141)
Voir plus

Référence: 665355
Bien en copropriété. Nombre de lots : 51. Charges de copropriété : 1 €.
Honoraires à la charge du vendeur.
Barème des honoraires

Prêt immobilier

Vous souhaitez connaître votre capacité d’emprunt et trouver le meilleur crédit immobilier ?
Réaliser une simulation gratuite

Photo 1 - Appartement à GUJAN-MESTRAS
Photo 1
Photo 2 - Appartement à GUJAN-MESTRAS
Photo 2
Ce site est protégé par reCAPTCHA la Politique de confidentialité et les Conditions d’utilisation de Google s’appliquent.
Obtenir un prêt immobilier au meilleur taux ?

En poursuivant votre navigation sans modifier vos paramètres, vous acceptez l'utilisation de cookies susceptibles de réaliser des statistiques de visite. Cliquez ici pour plus d'informations