Bénéficiez des services de nos partenaires locaux soigneusement sélectionnés
pour vous accompagner dans votre parcours d'achat immobilier

Appartement 61m² à gujan-mestras

— Gujan-Mestras 33470 —
361 000 €
61 m²
3 pièces
parking

Nos partenaires locaux
Situé dans la charmante ville de Gujan-Mestras, ce bien bénéficie d'un emplacement privilégié au coeur d'un quartier calme et convivial. Proche des commerces, des écoles et des transports en commun, cet appartement offre un cadre de vie agréable, idéal pour les familles ou les professionnels. De plus, sa proximité avec le bassin d'Arcachon fait de Gujan-Mestras un lieu prisé pour les amoureux de la nature et des activités en plein air.

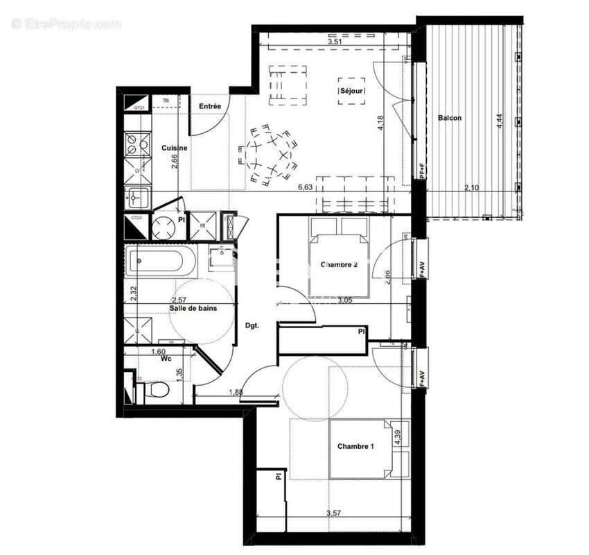
Cet appartement dispose d'une place de parking, offrant ainsi un confort supplémentaire à ses habitants. Avec ses 60 m² de surface habitable, cet espace de vie comprend 3 pièces dont 2 chambres lumineuses. De plus, un balcon de 9,20 m² offre un coin extérieur idéal pour se détendre en toute tranquillité.

À l'intérieur, vous trouverez une entrée accueillante menant à un séjour spacieux avec une cuisine ouverte de 23,80 m², parfait pour recevoir famille et amis. Les deux chambres offrent des surfaces généreuses, notamment la chambre principale de 14,10 m². La salle de bain et les toilettes séparées apportent un confort quotidien appréciable. En somme, cet appartement moderne et bien agencé promet un cadre de vie harmonieux pour ses futurs occupants.
Programme neuf livraison juin 2026

Le bien comprend 2 lots, et il est situé dans une copropriété de 51 lots (les charges courantes annuelles moyennes de copropriété sont de 1 ¤ et le syndicat des copropriétaires ne fait pas l'objet d'une procédure citée à l'article L. 721-1 du code de la construction et de l'habitation).

Les informations sur les risques auxquels ce bien est exposé sont disponibles sur le site Géorisques : www.georisques.gouv.fr
Prix de vente : 361 000 ¤
Honoraires charge vendeur

Contactez votre conseiller SAFTI : Gaëlle SIAD, Tél. : [Coordonnées masquées], E-mail : [Coordonnées masquées] - EI - Agent commercial immatriculé au RSAC de BORDEAUX sous le numéro 803378173.
Informations LOI ALUR :
Soumis au régime de copropriété.
Nombre de lots : 51.
Quote part annuelle(moyenne) : 1 euros.
Honoraires charge vendeur. (gedeon_26118_32247145)
Voir plus

Référence: 665355
Bien en copropriété. Nombre de lots : 51. Charges de copropriété : 1 €.
Honoraires à la charge du vendeur.
Barème des honoraires

Prêt immobilier

Vous souhaitez connaître votre capacité d’emprunt et trouver le meilleur crédit immobilier ?
Réaliser une simulation gratuite

Photo 1 - Appartement à GUJAN-MESTRAS
Photo 1
Photo 2 - Appartement à GUJAN-MESTRAS
Photo 2
Photo 3 - Appartement à GUJAN-MESTRAS
Photo 3
Photo 4 - Appartement à GUJAN-MESTRAS
Photo 4
Ce site est protégé par reCAPTCHA la Politique de confidentialité et les Conditions d’utilisation de Google s’appliquent.
Obtenir un prêt immobilier au meilleur taux ?

En poursuivant votre navigation sans modifier vos paramètres, vous acceptez l'utilisation de cookies susceptibles de réaliser des statistiques de visite. Cliquez ici pour plus d'informations