Bénéficiez des services de nos partenaires locaux soigneusement sélectionnés
pour vous accompagner dans votre parcours d'achat immobilier

Maison provençale avec piscine secteur tour de mare à fréjus

— Frejus 83600 —
665 000 €
143 m² / 905 m²
5 pièces
parkingbalcon/terrassejardinpiscine

Nos partenaires locaux
Maison provençale avec piscine Secteur Tour de Mare à Fréjus
Située dans un domaine résidentiel fermé au sein de l'un des quartiers les plus convoités de Fréjus, cette magnifique demeure de style provençal s'étend sur une parcelle aménagée de 905 m2 agrémentée d'une piscine. Le secteur de la Tour de Mare combine idéalement proximité des services et tranquillité, avec magasins, établissements scolaires et liaisons de transport à portée immédiate.
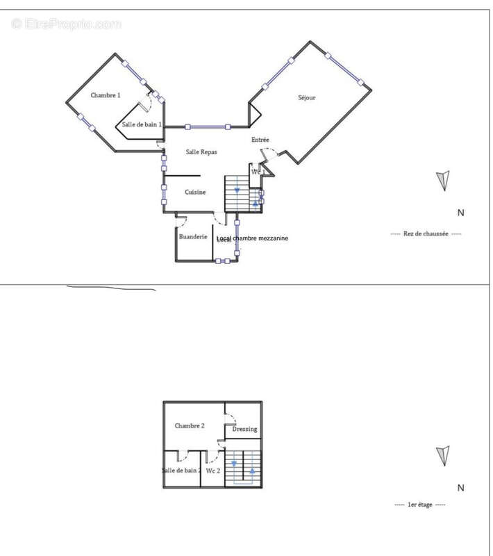
Cette habitation édifiée en 1998, propose :
Aménagement du rez-de-jardin :

Hall d'accueil ouvrant sur un vaste espace de réception baigné de lumière
Cuisine ouverte aménagée communiquant avec une terrasse abritée
Suite principale équipée de rangements intégrés avec sa salle d'eau
Seconde chambre dotée d'aménagements de rangement et mezzanine
Toilettes invités indépendants
Espace de service avec zone lessiverie et stockage

Configuration de l'étage supérieur :

Dégagement distribuant une chambre avec un large espace dressing
Salle d'eau avec baignoire
WC indépendants

Les espaces extérieurs comprennent un jardin entièrement clôturé et planté d'arbres matures, une terrasse orientée sud surplombant l'espace piscine, un spacieux abri de jardin en bois pour le rangement, carrelé et électrifié, et des emplacements de stationnement pour plusieurs véhicules avec borne de recharge
Avantages de la localisation :

Secteur prisé de la Tour de Mare, reconnu pour sa quiétude et sa sûreté
Connexion aisée vers l'autoroute A8 et les zones côtières
Voisinage à proximité établissements éducatifs, espaces verts et chemins pédestres
Arrêt de bus devant le domaine
Cadre résidentiel arboré et soigné
Faibles charges ASL

Une opportunité exceptionnelle dans ce secteur, combinant l'authenticité provençale, les prestations contemporaines et une situation géographique privilégiée.
Taxe foncière: 2605€ / an
Chauffage au sol et climatisation
Charges ASL: 40 €/mois
Voir plus

Référence: 1493
Honoraires à la charge du vendeur.
Barème des honoraires
DPE
A
B
C
D
E
F
G
GES
A
B
C
D
E
F
G

Prêt immobilier

Vous souhaitez connaître votre capacité d’emprunt et trouver le meilleur crédit immobilier ?
Réaliser une simulation gratuite

Maison à FREJUS
Maison à FREJUS
Maison à FREJUS
Maison à FREJUS
Maison à FREJUS
Maison à FREJUS
Maison à FREJUS
Maison à FREJUS
Maison à FREJUS
Maison à FREJUS
Maison à FREJUS
Maison à FREJUS
Maison à FREJUS
Maison à FREJUS
Maison à FREJUS
Maison à FREJUS
Ce site est protégé par reCAPTCHA la Politique de confidentialité et les Conditions d’utilisation de Google s’appliquent.
Obtenir un prêt immobilier au meilleur taux ?

En poursuivant votre navigation sans modifier vos paramètres, vous acceptez l'utilisation de cookies susceptibles de réaliser des statistiques de visite. Cliquez ici pour plus d'informations