Bénéficiez des services de nos partenaires locaux soigneusement sélectionnés
pour vous accompagner dans votre parcours d'achat immobilier

Appartement 2-3 pièces - 65 m² - vue sur cour au calme - rue fabre d'eglantine, paris 12ème

— Paris-12e 75012 —
640 000 €
65 m²
2 pièces
ascenseur

Nos partenaires locaux
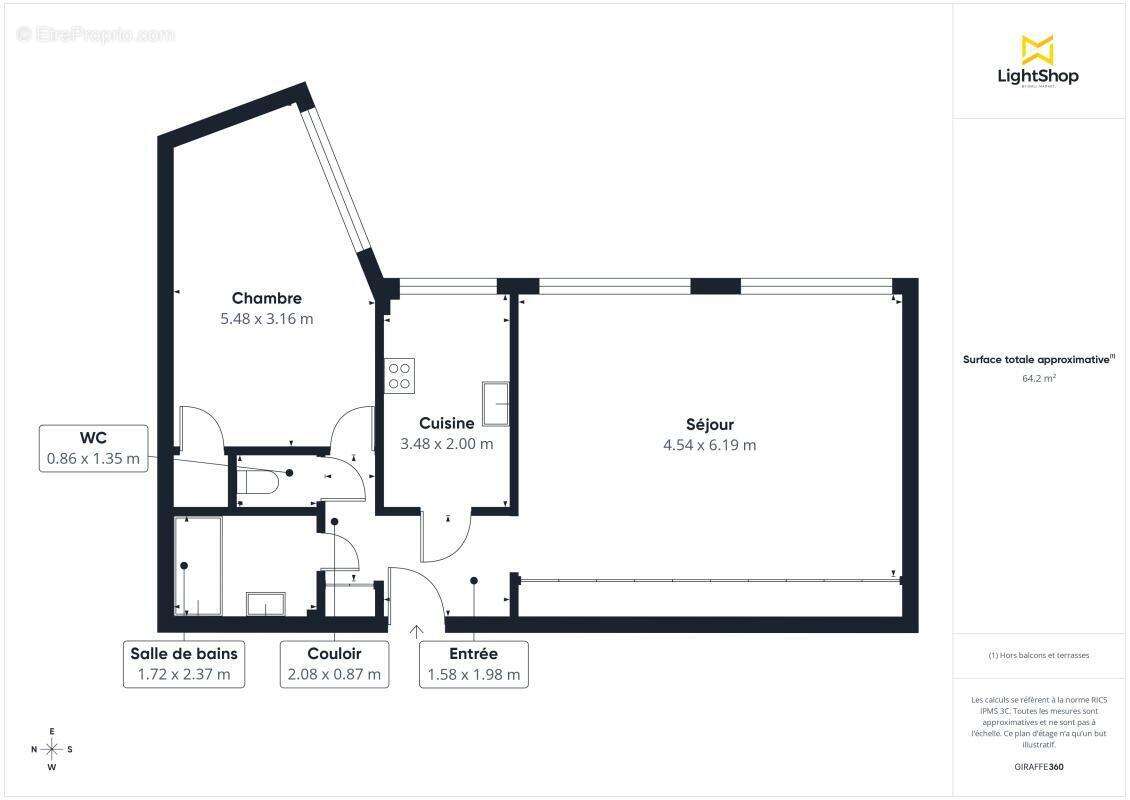
Hosman vous propose cet appartement de type 2 pièces, d'une surface de 65 m² (Carrez), est situé au 5ème étage d'un immeuble de 10 étages, avec ascenseur, sur la Rue Fabre d'Eglantine, à Paris dans le 12ème arrondissement. Avec une exposition est, il offre une très bonne luminosité et donne sur une cour calme.

L'appartement se compose:

- D'une entrée menant à un double séjour lumineux de 28,48m² avec placard intégré.
- une cuisine séparée pouvant être ouverte sur le salon
L'appartement est modulable pouvant être transformé en 3 pièces.
- D'une chambre spacieuse de 15m² avec placard,
- D'une salle de bains avec baignoire
- De toilettes séparées

Le système de chauffage et d'eau chaude est collectif. Une cave est incluse avec l'appartement, et l'immeuble dispose d'un local à vélos.
Le bien est soumis au statut de copropriété. Construit en 1960, l'immeuble est bien entretenu avec un hall rénové il y a deux ans. Un gardien est présent dans l'immeuble, un atout pour la sécurité et le bon entretien de la résidence. Les parties communes sont en bon état.
Les charges de copropriété s'élèvent à 830 € par trimestre.
La taxe foncière annuelle est de 1402 €.

Bien idéalement situé dans un quartier commerçant et dynamique, parfaitement desservi par les transports: 2 minutes a pied de Place de la Nation (Métros 1-2-6-9 & RER A). La rue du Rendez-Vous se trouve à moins de 5 minutes à pied. Il est également possible de se rendre facilement au Bois de Vincennes ou à la Gare de Lyon.

Planifiez facilement votre visite en choisissant le créneau qui vous convient depuis le site d'Hosman.

Hosman s'efforce de réinventer l'agence immobilière en offrant un service innovant et transparent aux acheteurs et aux vendeurs. Nos frais d'agence sont de 17900 euros fixes à la charge du acheteur.

Si vous êtes un professionnel de l'immobilier (agent, mandataire ou chasseur immobilier), sachez que toutes les annonces Hosman sont ouvertes à la collaboration. N'hésitez pas à nous contacter pour en discuter.
Voir plus

Référence: bc9ded
Bien en copropriété. Charges de copropriété : 276 €.
DPE
A
B
C
D
E
F
G
GES
A
B
C
D
E
F
G

Prêt immobilier

Vous souhaitez connaître votre capacité d’emprunt et trouver le meilleur crédit immobilier ?
Réaliser une simulation gratuite

Appartement à PARIS-12E
Appartement à PARIS-12E
Appartement à PARIS-12E
Appartement à PARIS-12E
Appartement à PARIS-12E
Appartement à PARIS-12E
Appartement à PARIS-12E
Appartement à PARIS-12E
Appartement à PARIS-12E
Appartement à PARIS-12E
Appartement à PARIS-12E
Appartement à PARIS-12E
Appartement à PARIS-12E
Appartement à PARIS-12E
Appartement à PARIS-12E
Ce site est protégé par reCAPTCHA la Politique de confidentialité et les Conditions d’utilisation de Google s’appliquent.
Obtenir un prêt immobilier au meilleur taux ?

En poursuivant votre navigation sans modifier vos paramètres, vous acceptez l'utilisation de cookies susceptibles de réaliser des statistiques de visite. Cliquez ici pour plus d'informations