Bénéficiez des services de nos partenaires locaux soigneusement sélectionnés
pour vous accompagner dans votre parcours d'achat immobilier

Magnifique type 2 entièrement refait à neuf, 10 mn plage, arago, les présidents

— Les Sables-D'olonne 85100 —
199 000 €
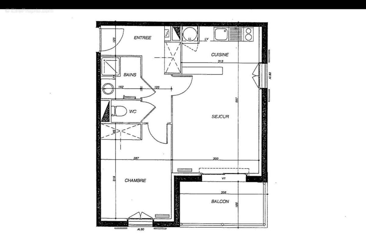
42 m²
2 pièces
balcon/terrasse

Nos partenaires locaux
Charlene BRAULT vous propose ce bien :

LES SABLES-D'OLONNE – QUARTIER BEL AIR / ARAGO – T2 DERNIER ÉTAGE AVEC TERRASSE – ENTIEREMENT RÉNOVÉ 2025

À vendre, agréable appartement T2 de bon standing situé au calme, au dernier étage d'une petite résidence récente (année 2000) dans le quartier très recherché de Bel Air, à deux pas d'Arago, du centre-ville et des plages des Sables-d'Olonne. Idéal résidence principale, pied-à-terre à la mer ou investissement locatif. ( rue des tulipes )

D'une surface optimale, ce 2 pièces se compose d'un séjour lumineux avec parquet, ouvert sur une belle terrasse-balcon d'environ 7 m², offrant une vue dégagée et une belle sensation d'espace. Cet extérieur permet de profiter pleinement des fins de journée et de l'air marin, dans un environnement calme.

La cuisine est ouverte, aménagée et équipée (mobilier de cuisine, éléments d'électroménager tels que plaques, hotte…), offrant un espace convivial et fonctionnel. L'appartement dispose d'une chambre confortable, de rangements pratiques avec 2 placards, et d'une salle d'eau (rénovation 2025) optimisée. L'ensemble a bénéficié d'une rénovation récente en 2025, vous n'avez plus qu'à poser vos valises.

Situé au 1er et dernier étage d'un immeuble comprenant 1 étage, ce T2 bénéficie du double vitrage, de volets coulissants, d'un chauffage individuel électrique par fluide caloporteur, garantissant confort et maîtrise de votre consommation. La copropriété, bien entretenue, propose un bon standing et un local à vélos très appréciable au quotidien en station balnéaire.

Les atouts pratiques sont nombreux : accès internet et fibre optique pour le télétravail, interphone, proximité immédiate des commerces, du marché d'Arago, du centre-ville, stationnement gratuit et nombreux dans la rue, ainsi que de la plage, accessible en quelques minutes à pied ou à vélo. Un emplacement très recherché qui permet de tout faire à pied.

Charges de copropriété maîtrisées : environ 50 €/mois. Bien soumis au statut de la copropriété. Intercabinet accepté.

Les Sables-d'Olonne, station balnéaire emblématique de la côte vendéenne, offrent une qualité de vie remarquable : grande plage de sable fin, promenade du Remblai, port de plaisance, animations toute l'année, gare SNCF, nombreuses infrastructures sportives et culturelles. Le quartier Bel Air / Arago est particulièrement prisé pour sa vie de quartier dynamique, ses commerces de proximité, son marché, tout en restant résidentiel et calme.

Prix de vente : 199 000 € FAI.

Un T2 rénové, au dernier étage, avec terrasse, au cœur d'un quartier recherché et proche plage : une opportunité rare aux Sables-d'Olonne.\nLes informations sur les risques auxquels ce bien est exposé sont disponibles sur le site Géorisques : www.georisques.gouv.fr
Voir plus

Référence: MB6375242094
Bien en copropriété. Charges de copropriété : 50 €.
DPE
A
B
C
D
E
F
G
GES
A
B
C
D
E
F
G

Prêt immobilier

Vous souhaitez connaître votre capacité d’emprunt et trouver le meilleur crédit immobilier ?
Réaliser une simulation gratuite

Appartement à LES SABLES-D'OLONNE
Appartement à LES SABLES-D'OLONNE
Appartement à LES SABLES-D'OLONNE
Appartement à LES SABLES-D'OLONNE
Appartement à LES SABLES-D'OLONNE
Appartement à LES SABLES-D'OLONNE
Appartement à LES SABLES-D'OLONNE
Appartement à LES SABLES-D'OLONNE
Appartement à LES SABLES-D'OLONNE
Appartement à LES SABLES-D'OLONNE
Appartement à LES SABLES-D'OLONNE
Appartement à LES SABLES-D'OLONNE
Appartement à LES SABLES-D'OLONNE
Appartement à LES SABLES-D'OLONNE
Appartement à LES SABLES-D'OLONNE
Ce site est protégé par reCAPTCHA la Politique de confidentialité et les Conditions d’utilisation de Google s’appliquent.
Obtenir un prêt immobilier au meilleur taux ?

En poursuivant votre navigation sans modifier vos paramètres, vous acceptez l'utilisation de cookies susceptibles de réaliser des statistiques de visite. Cliquez ici pour plus d'informations