Bénéficiez des services de nos partenaires locaux soigneusement sélectionnés
pour vous accompagner dans votre parcours d'achat immobilier

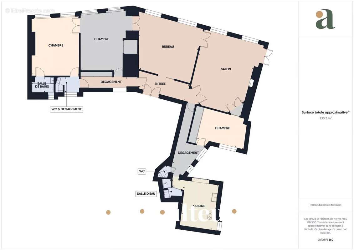
Appartement 5 pièces – 130 m² – paris 10ᵉ, quartier porte saint-denis

— Paris-10e 75010 —
1 420 500 €
130 m²
5 pièces
ascenseur

Nos partenaires locaux
Bienvenue chez Abriculteurs, l’agence familiale qui s’engage à un service immobilier d’exception.
Découvrez une présentation soignée de ce bien : des photos professionnelles, un plan détaillé et une visite virtuelle immersive.

Au cœur de Paris 10, cet appartement de 130 m² se situe au 3ᵉ étage sur 6 d’un immeuble du XIXᵉ siècle, rénové, doté d’un ascenseur et d’une gardienne.
Implanté dans un secteur particulièrement vivant et central, au pied de la Porte Saint-Denis, le quartier séduit par son ambiance animée, ses théâtres, ses nombreux commerces et l’accès immédiat aux transports en commun qui facilitent toutes les mobilités.

L’entrée dessert un vaste bureau pouvant aisément devenir une pièce de vie supplémentaire, ainsi qu’un salon principal orné d’une cheminée, de moulures, d’un parquet point de Hongrie et de décors à la feuille d’or, offrant le charme authentique des appartements parisiens aux belles hauteurs sous plafond.

Un premier couloir conduit à deux grandes chambres lumineuses donnant sur rue, une salle de bains et un espace toilettes. Ces quatre pièces, orientées plein sud et communicantes, bénéficient d’une belle cohérence d’ensemble.

Un second couloir mène à une cuisine équipée, une troisième chambre, une salle d’eau et des toilettes séparées, permettant une organisation fonctionnelle et flexible des espaces.

Grâce à sa configuration, ses volumes généreux et sa situation stratégique, ce bien propose un important potentiel après rénovation et peut convenir à un usage mixte mêlant habitation et activité de profession libérale.

Une cave d’environ 3 m² s’ajoute aux nombreux rangements déjà présents dans l’appartement.

Les + du bien :
- Emplacement recherché au pied de la Porte Saint-Denis
- Immeuble du XIXe siècle avec ascenseur et gardienne
- Charme de l’ancien : parquet point de Hongrie, moulure, décoration feuille d’or, cheminée, …
- Nombreux rangements et cave
- Beau potentiel après rénovation

A noter :
- Taxes foncières : 1946 €
- Charges de copropriété : 5 591 € / an (eau, ascenseur, gardienne, entretien des parties communes)
- État du bien : Travaux à prévoir
- Le bien est soumis au statut de copropriété : 33 lots dont 12 lots d’habitation
- Appartement lot n°26 ; Cave Lot n°15
- Pas de procédure en cours

Consommation conventionnelle (kWhEP/m2.an) : 256 (E)
Estimation des émissions (kg CO2/m2.an) : 51 (E)

Prix de vente : 1 489 600 € (Honoraires agence à la charge du vendeur)

Ce bien a retenu votre intérêt ? Pour organiser la visite avec nous, rien de plus simple, prenez rendez-vous en ligne au moment qui vous convient le mieux.

Les informations sur les risques auxquels ce bien est exposé sont disponibles sur le site Géorisques : : www.georisques.gouv.fr

Annonce rédigée sous la responsabilité éditoriale de Mme Isabelle BRUT-FRANCIS , agent commercial (EI), immatriculé au RSAC de Nanterre sous le n° 903 553 295, sans détention de fonds, agissant pour le compte de la SARL Abriculteurs immobilier, au capital de 5 000 €, immatriculée sous le SIREN n° 837 704 584, titulaire de la carte professionnelle n° CPI 75[Coordonnées masquées]25 842 délivrée par la CCI de Paris Île-de-France, dont le représentant légal est M. Adrien Piot, ayant son siège social au 12 rue des Halles, 75001 Paris.
Voir plus

Référence: IFVA3216
Barème des honoraires
DPE
A
B
C
D
E
F
G
GES
A
B
C
D
E
F
G

Prêt immobilier

Vous souhaitez connaître votre capacité d’emprunt et trouver le meilleur crédit immobilier ?
Réaliser une simulation gratuite

Appartement à PARIS-10E
Appartement à PARIS-10E
Appartement à PARIS-10E
Appartement à PARIS-10E
Appartement à PARIS-10E
Appartement à PARIS-10E
Appartement à PARIS-10E
Appartement à PARIS-10E
Appartement à PARIS-10E
Appartement à PARIS-10E
Appartement à PARIS-10E
Appartement à PARIS-10E
Appartement à PARIS-10E
Appartement à PARIS-10E
Appartement à PARIS-10E
Appartement à PARIS-10E
Ce site est protégé par reCAPTCHA la Politique de confidentialité et les Conditions d’utilisation de Google s’appliquent.
Obtenir un prêt immobilier au meilleur taux ?

En poursuivant votre navigation sans modifier vos paramètres, vous acceptez l'utilisation de cookies susceptibles de réaliser des statistiques de visite. Cliquez ici pour plus d'informations