Dernier étage t2 et sa magnifique terrasse plein ciel de 17m²!

— Clichy 92110 —
399 000 €
58 m²
2 pièces
parkingbalcon/terrasseascenseur

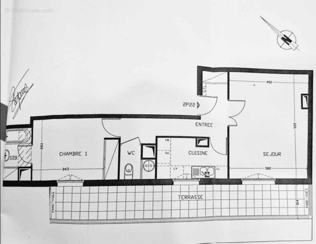
Asnières-sur-Seine -Centre Gabriel Péri (92600) Dans une résidence récente (2002), découvrez ce magnifique 2 pièces au dernier étage, entièrement bordé par une terrasse de 19m² exposée Sud-Ouest, idéale pour profiter du ciel dégagé et des couchers de soleil. L'appartement, modulable en 3 pièces, se compose d'une entrée avec placard, d'un lumineux séjour de 20 m², d'une cuisine séparée (possibilité d'ouverture), de WC indépendants ainsi que d'une vaste chambre avec sa salle de bains attenante.( parking poss en sus pour 20000 euros) Toutes les pièces s'ouvrent sur la terrasse, offrant une belle continuité entre intérieur et extérieur. Un rafraîchissement est à prévoir, mais le potentiel et l'emplacement sont exceptionnels : Métro Gabriel Péri à 5 minutes, Hôtel de Ville à 10 minutes, Gare à 15 minutes. Un bien rare sur le secteur, à visiter sans tarder ! libération fin Avril 2026 (3.10 % honoraires TTC à la charge de l'acquéreur.) Copropriété de 49 lots - dont 24 lots habitation. (Pas de procédure en cours). Charges annuelles : 1076 euros.
Voir plus

Référence: 61
Bien en copropriété. Nombre de lots : 49. Charges de copropriété : 1076 €.
Honoraires d'agence de 3.1% à la charge de l'acquéreur
Barème des honoraires
DPE
A
B
C
D
E
F
G
GES
A
B
C
D
E
F
G

Prêt immobilier

Vous souhaitez connaître votre capacité d’emprunt et trouver le meilleur crédit immobilier ?
Réaliser une simulation gratuite

Appartement à CLICHY
Appartement à CLICHY
Appartement à CLICHY
Appartement à CLICHY
Appartement à CLICHY
Appartement à CLICHY
Appartement à CLICHY
Appartement à CLICHY
Appartement à CLICHY
Appartement à CLICHY
Ce site est protégé par reCAPTCHA la Politique de confidentialité et les Conditions d’utilisation de Google s’appliquent.
Obtenir un prêt immobilier au meilleur taux ?

En poursuivant votre navigation sans modifier vos paramètres, vous acceptez l'utilisation de cookies susceptibles de réaliser des statistiques de visite. Cliquez ici pour plus d'informations