Bénéficiez des services de nos partenaires locaux soigneusement sélectionnés
pour vous accompagner dans votre parcours d'achat immobilier

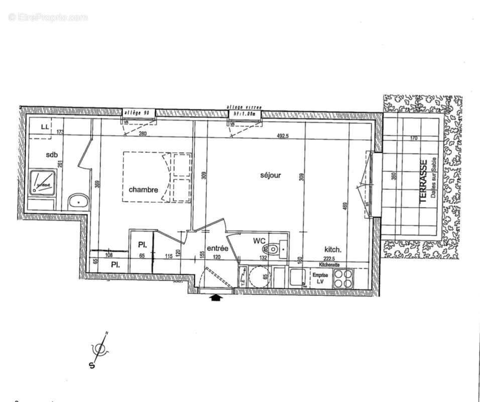
Appartement 39m² à nantes

— Nantes 44300 —
139 300 €
39 m²
2 pièces
parkingbalcon/terrasse

Nos partenaires locaux
Iad France - Marine Joannis vous propose : T2 avec terrasse privative et parking - Nantes Michelet / Petit Port
À 100 m du tram et à deux pas des facs, découvrez ce T2 en rez-de-jardin avec terrasse.

Situé dans une résidence récente (2008) en cours de ravalement, cet appartement de 38 m² propose une configuration fonctionnelle avec une vraie chambre et une belle pièce de vie. Son atout charme : un petite extérieur à aménager à votre goût.

L'entrée, avec placard intégré, dessert une pièce de vie lumineuse, orientée Est et Nord, avec accès direct à une terrasse privative, parfaite pour créer un coin détente.

Le coin cuisine est aménagé et fonctionnel, avec meubles haut et bas.

Côté nuit, on poursuite la visite avec une chambre avec placard, une grande salle d'eau avec emplacement pour machine à laver, et des toilettes séparées.
?Une place de parking privative en sous-sol complète l'ensemble.

La copropriété est bien entretenue, dispose d'un local à vélo, et le ravalement de façade est en cours (à la charge des vendeurs).
Précédemment loué pour un montant de 660 ¤ CC.

Les points positifs :
Ravalement de façade voté et payé par les vendeurs
Chauffage électrique, double vitrage, volets roulants
Proximité immédiate des commerces et transports (tram 2 Petit Port à 200m)
DPE : D / GES : B

Plus de photos disponibles sur demande. Vidéo disponible sur demande.


La presente annonce immobiliere vise 2 lots situés dans une copropriété de 76 lots au total et ne faisant l'objet d'aucune procédure en cours citée à l'article L. 721-1 du code de la construction et de l'habitation. Montant moyen mensuel de charges déclaré par le vendeur : 98.67¤ par mois (soit 1184 ¤ annuel). Honoraires d'agence à la charge du vendeur.
Information d'affichage énergétique sur ce bien : classe ENERGIE D indice 246 et classe CLIMAT B indice 7. Les informations sur les risques auxquels ce bien est exposé, y compris l'obligation légale de débroussaillement, sont disponibles sur le site Géorisques : http://www.georisques.gouv.fr.
La présente annonce immobilière a été rédigée sous la responsabilité éditoriale de Mme Marine Joannis mandataire indépendant en immobilier (sans détention de fonds), agent commercial de la SAS I@D France immatriculé au RSAC de NANTES sous le numéro 892179755, titulaire de la carte de démarchage immobilier pour le compte de la société I@D France SAS.
Informations LOI ALUR :
Soumis au régime de copropriété.
Nombre de lots : 76.
Quote part annuelle(moyenne) : 1184 euros.
Honoraires charge vendeur. (gedeon_6727_31860803)
Voir plus

Référence: 1754746
Bien en copropriété. Nombre de lots : 76. Charges de copropriété : 1184 €.
Honoraires à la charge du vendeur.
DPE
A
B
C
D
E
F
G
GES
A
B
C
D
E
F
G

Prêt immobilier

Vous souhaitez connaître votre capacité d’emprunt et trouver le meilleur crédit immobilier ?
Réaliser une simulation gratuite

Photo 1 - Appartement à NANTES
Photo 1
Photo 2 - Appartement à NANTES
Photo 2
Photo 3 - Appartement à NANTES
Photo 3
Photo 4 - Appartement à NANTES
Photo 4
Photo 5 - Appartement à NANTES
Photo 5
Photo 6 - Appartement à NANTES
Photo 6
Photo 7 - Appartement à NANTES
Photo 7
Photo 8 - Appartement à NANTES
Photo 8
Photo 9 - Appartement à NANTES
Photo 9
Ce site est protégé par reCAPTCHA la Politique de confidentialité et les Conditions d’utilisation de Google s’appliquent.
Obtenir un prêt immobilier au meilleur taux ?

En poursuivant votre navigation sans modifier vos paramètres, vous acceptez l'utilisation de cookies susceptibles de réaliser des statistiques de visite. Cliquez ici pour plus d'informations