Bénéficiez des services de nos partenaires locaux soigneusement sélectionnés
pour vous accompagner dans votre parcours d'achat immobilier

Appartement 40m² à vannes

— Vannes 56000 —
168 000 €
40 m²
2 pièces
parkingbalcon/terrasseascenseur

Nos partenaires locaux
Iad France - Alan Carduner vous propose : Vannes Ouest - 40 m² - Balcon - Box fermé - Ascenseur

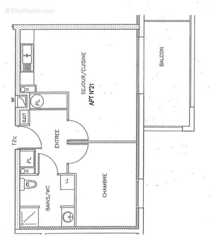
Situé quartier Bernus, à l'ouest de Vannes, cet appartement de 40 m² se trouve au 2e étage sur 4 d'une résidence de 2005, calme et bien entretenue, avec ascenseur.
Un emplacement recherché : Conleau à 10 min à pied, sentiers côtiers à deux pas, et 25 minutes à pied du port. Toutes les commodités et les lignes de bus sont accessibles très rapidement.

L'entrée dispose d'un placard, puis on découvre une pièce de vie lumineuse en L avec cuisine ouverte et salon donnant directement sur un balcon de 9 m² exposé sud-est.
Il bénéficie également d'une belle chambre, une salle d'eau avec coin buanderie et WC.

En complément :
- Box fermé de 20 m² en sous-sol

Résidence calme, secteur recherché, proche nature et ville.

Un appartement lumineux, fonctionnel et bien placé, parfait pour un premier achat, un pied-à-terre ou un investissement locatif.

Envie de le visiter ? Contactez-moi !

La presente annonce immobiliere vise 2 lots situés dans une copropriété de 132 lots au total et ne faisant l'objet d'aucune procédure en cours citée à l'article L. 721-1 du code de la construction et de l'habitation. Montant moyen mensuel de charges déclaré par le vendeur : 58.94¤ par mois (soit 707.28 ¤ annuel). Honoraires d'agence à la charge du vendeur.
Information d'affichage énergétique sur ce bien : classe ENERGIE C indice 161 et classe CLIMAT A indice 4. Les informations sur les risques auxquels ce bien est exposé, y compris l'obligation légale de débroussaillement, sont disponibles sur le site Géorisques : http://www.georisques.gouv.fr.
La présente annonce immobilière a été rédigée sous la responsabilité éditoriale de M Alan Carduner mandataire indépendant en immobilier (sans détention de fonds), agent commercial de la SAS I@D France immatriculé au RSAC de Lorient sous le numéro 890860570, titulaire de la carte de démarchage immobilier pour le compte de la société I@D France SAS.
Informations LOI ALUR :
Soumis au régime de copropriété.
Nombre de lots : 132.
Quote part annuelle(moyenne) : 707.28 euros.
Honoraires charge vendeur. (gedeon_6727_32253075)
Voir plus

Référence: 1898855
Bien en copropriété. Nombre de lots : 132. Charges de copropriété : 707 €.
Honoraires à la charge du vendeur.
DPE
A
B
C
D
E
F
G
GES
A
B
C
D
E
F
G

Prêt immobilier

Vous souhaitez connaître votre capacité d’emprunt et trouver le meilleur crédit immobilier ?
Réaliser une simulation gratuite

Photo 1 - Appartement à VANNES
Photo 1
Photo 2 - Appartement à VANNES
Photo 2
Photo 3 - Appartement à VANNES
Photo 3
Photo 4 - Appartement à VANNES
Photo 4
Photo 5 - Appartement à VANNES
Photo 5
Photo 6 - Appartement à VANNES
Photo 6
Photo 7 - Appartement à VANNES
Photo 7
Photo 8 - Appartement à VANNES
Photo 8
Photo 9 - Appartement à VANNES
Photo 9
Ce site est protégé par reCAPTCHA la Politique de confidentialité et les Conditions d’utilisation de Google s’appliquent.
Obtenir un prêt immobilier au meilleur taux ?

En poursuivant votre navigation sans modifier vos paramètres, vous acceptez l'utilisation de cookies susceptibles de réaliser des statistiques de visite. Cliquez ici pour plus d'informations