Bénéficiez des services de nos partenaires locaux soigneusement sélectionnés
pour vous accompagner dans votre parcours d'achat immobilier

Voir tous les partenaires locaux

Paris xvi - quartier chaillot - triplex d'exception 213m2

— Paris-16e 75016 —
3 700 000 €
212 m²
6 pièces
balcon/terrasseascenseur

Nos partenaires locaux
Esprit maison pour cet appartement atypique de 213m2, situé dans une résidence semi-récente de grand standing.

L'entrée dans les lieux se fait au choix, soit par le magnifique hall de la résidence, soit par un accès indépendant.

Le rez-de-chaussée dispose d'une entrée avec dressing, d'un bureau, d'un toilette invité, ainsi que d'une cuisine ouverte sur salle à manger.

Le premier étage accueille un séjour convivial s'ouvrant sur une cour privative et intimiste, idéale pour des déjeuners à l'abri des regards. Une chambre de maitre avec sa salle de bain privative complète cet étage.

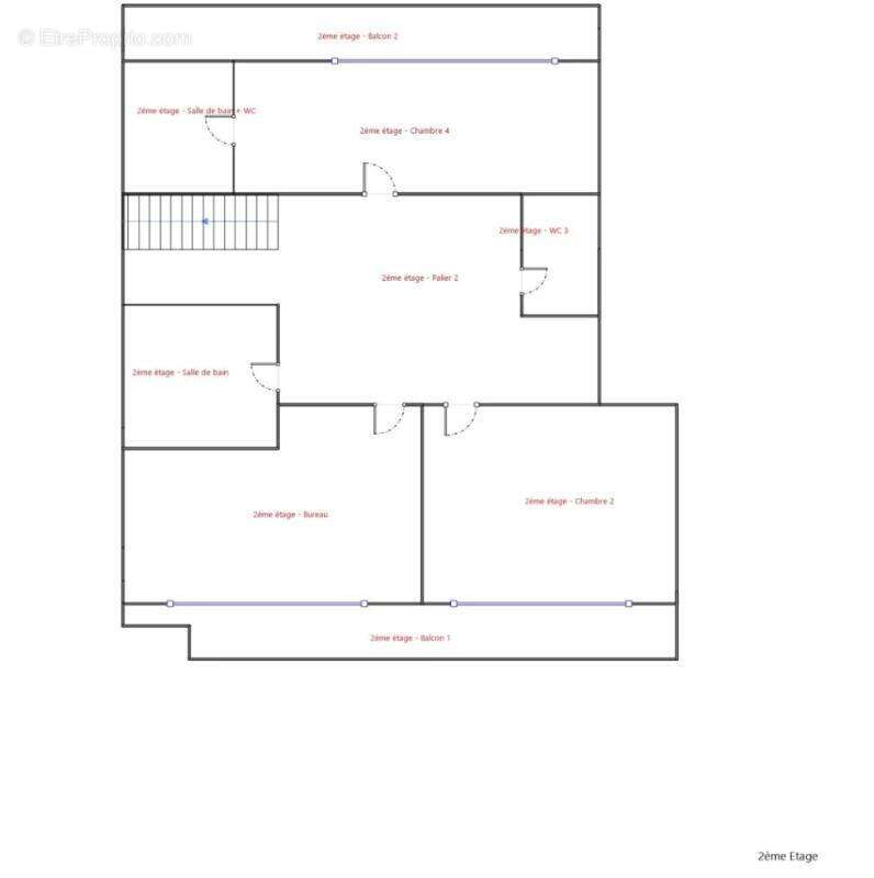
Le deuxième et dernier étage du bâtiment, dispose d'une grande chambre avec sa salle d'eau privative, d'une chambre supplémentaire ainsi que d'un bureau. Une salle d'eau indépendante et un toilette sont également présents à cet étage.

Chaque chambre bénéficie d'un espace extérieur sur grand balcon.
L'appartement est au calme, le bâtiment ne disposant pas de voisins aux étages supérieurs.

L'appartement est traversant et s'ouvre à la fois sur les jardins de la résidence et sur une petite rue peu passante.

L'appartement dispose d'un ascenseur privatif desservant les étages.

Un bien rare et polyvalent pouvant accueillir activité libérale, bureaux, showroom ou résidence familiale.
Pour les amoureux de biens atypiques, en quête de confort et d'indépendance. Un lieu inspirant ayant été la résidence de grands artistes français.

Possibilité d'acquérir deux grandes places de parking mitoyennes, dans la résidence. Honoraires à la charge du vendeur - Nombre de lots dans la copropriété: 447 - Montant moyen de la quote-part de charges courantes 13,200 €/an - Montant estimé des dépenses annuelles d'énergie pour un usage standard, établi à partir des prix de l'énergie de l'année 2021 : 3850€ ~ 5220€ - Les informations sur les risques auxquels ce bien est exposé sont disponibles sur le site Géorisques : www.georisques.gouv.fr - Nathalie FREIRE - Agent commercial - EI - RSAC CRETEIL 988 426 227
Voir plus

Référence: 86395257
Bien en copropriété. Nombre de lots : 447. Charges de copropriété : 1100 €.
Honoraires à la charge du vendeur.
DPE
A
B
C
D
E
F
G
GES
A
B
C
D
E
F
G

Prêt immobilier

Vous souhaitez connaître votre capacité d’emprunt et trouver le meilleur crédit immobilier ?
Réaliser une simulation gratuite

Appartement à PARIS-16E
Appartement à PARIS-16E
Appartement à PARIS-16E
Appartement à PARIS-16E
Appartement à PARIS-16E
Ce site est protégé par reCAPTCHA la Politique de confidentialité et les Conditions d’utilisation de Google s’appliquent.
Obtenir un prêt immobilier au meilleur taux ?

En poursuivant votre navigation sans modifier vos paramètres, vous acceptez l'utilisation de cookies susceptibles de réaliser des statistiques de visite. Cliquez ici pour plus d'informations