Maison 147m² à le soler

— Le Soler 66270 —
350 000 €
147 m² / 335 m²
4 pièces
parkingbalcon/terrasse

66270 LE SOLER – MAISON CONTEMPORAINE 3 FACES – PRESTATIONS HAUT DE GAMME

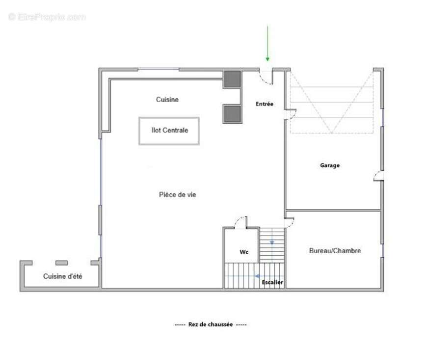
Jennifer Efficity, votre consultante qui estime votre bien en ligne, vous présente cette superbe maison située au Soler, nichée dans un secteur calme et recherché. Avec 147 m² habitables sur un terrain de 335 m², cette maison offre un cadre de vie moderne, spacieux et confortable.

Caractéristiques principales :
* Pièce de vie lumineuse de 62 m²
* Cuisine équipée moderne
* 2 suites parentales (15 m² et 17 m²) avec dressing & salle de bain
* 1 bureau/chambre au RDC (11 m²)
* Terrasse de 48 m² au niveau des chambres
* Cuisine d'été
* Garage de 31 m²
* Extérieur bétonné

Caractéristiques techniques :
* Climatisation
* Volets roulants électriques
* Fenêtres à galandage
* Isolation laine de roche
* Charpente métallique
* Ballon d'eau chaude 300 L
* Portail électrique
* Taxe foncière : 1777 €

Description détaillée :
Cette maison séduira ceux qui recherchent un espace à la fois contemporain, fonctionnel et généreux. Dès l'entrée, la vaste pièce de vie de 62 m² donne le ton : volumes, lumière et modernité. La cuisine entièrement équipée s'intègre parfaitement à cet espace convivial. Deux belles suites parentales, chacune avec dressing et salle de bain, offrent un confort optimal. Au rez-de-chaussée, un bureau/chambre supplémentaire permet d'adapter les lieux à vos besoins.
L'extérieur, entièrement bétonné, facilite l'entretien tout en proposant des espaces pratiques, notamment une cuisine d'été idéale pour recevoir. La terrasse de 48 m² à l'étage prolonge l'espace nuit et permet de profiter de moments de détente en toute intimité vue sur le Canigo.

Localisation :
Située au Soler, à proximité immédiate des commodités, écoles et axes routiers, cette maison bénéficie d'un environnement agréable tout en restant proche de Perpignan et de la zone littorale.

Jennifer Efficity vous accompagne dans toutes les étapes de votre projet avec réactivité, écoute et implication. Parlons ensemble de votre projet immobilier ! N'hésitez pas à me contacter par téléphone, par mail ou via mes réseaux sociaux (Facebook et Instagram).

*******
Les informations sur les risques auxquels ce bien est exposé sont disponibles sur le site Georisque : georisques. gouv. fr
Jennifer Sauget-Balleydier - EI - est Agent Commercial mandataire en immobilier, immatriculé au Registre Spécial des Agents Commerciaux du Tribunal de Commerce de Perpignan sous le n°534887732.
Siège social du mandant : effiCity, 48 avenue de Villiers - 75017 PARIS - Société par Actions Simplifiée, société au capital de 132 373,05 euros, immatriculée au RCS Paris 497 617 746 et titulaire de la Carte professionnelle CPI 75[Coordonnées masquées]02 025 - CCI Paris IDF - Caisse de Garantie : GALIAN Assurances 89 rue de la Boétie 75008 Paris
Voir plus

Référence: 200337
Honoraires à la charge du vendeur.
Barème des honoraires
DPE
A
B
C
D
E
F
G
GES
A
B
C
D
E
F
G

Prêt immobilier

Vous souhaitez connaître votre capacité d’emprunt et trouver le meilleur crédit immobilier ?
Réaliser une simulation gratuite

Maison à LE SOLER
Maison à LE SOLER
Maison à LE SOLER
Maison à LE SOLER
Maison à LE SOLER
Maison à LE SOLER
Maison à LE SOLER
Maison à LE SOLER
Maison à LE SOLER
Maison à LE SOLER
Maison à LE SOLER
Maison à LE SOLER
Maison à LE SOLER
Maison à LE SOLER
Maison à LE SOLER
Maison à LE SOLER
Ce site est protégé par reCAPTCHA la Politique de confidentialité et les Conditions d’utilisation de Google s’appliquent.
Obtenir un prêt immobilier au meilleur taux ?

En poursuivant votre navigation sans modifier vos paramètres, vous acceptez l'utilisation de cookies susceptibles de réaliser des statistiques de visite. Cliquez ici pour plus d'informations