Bénéficiez des services de nos partenaires locaux soigneusement sélectionnés
pour vous accompagner dans votre parcours d'achat immobilier

Appartement 71m² à paris-15e

— Paris-15e 75015 —
760 000 €
71 m²
3 pièces
ascenseur

Nos partenaires locaux
Paris 15e - 2 / 3 p, 71 m² - Dupleix / Lourmel

Emplacement idéal, calme et proche de toutes les commodités
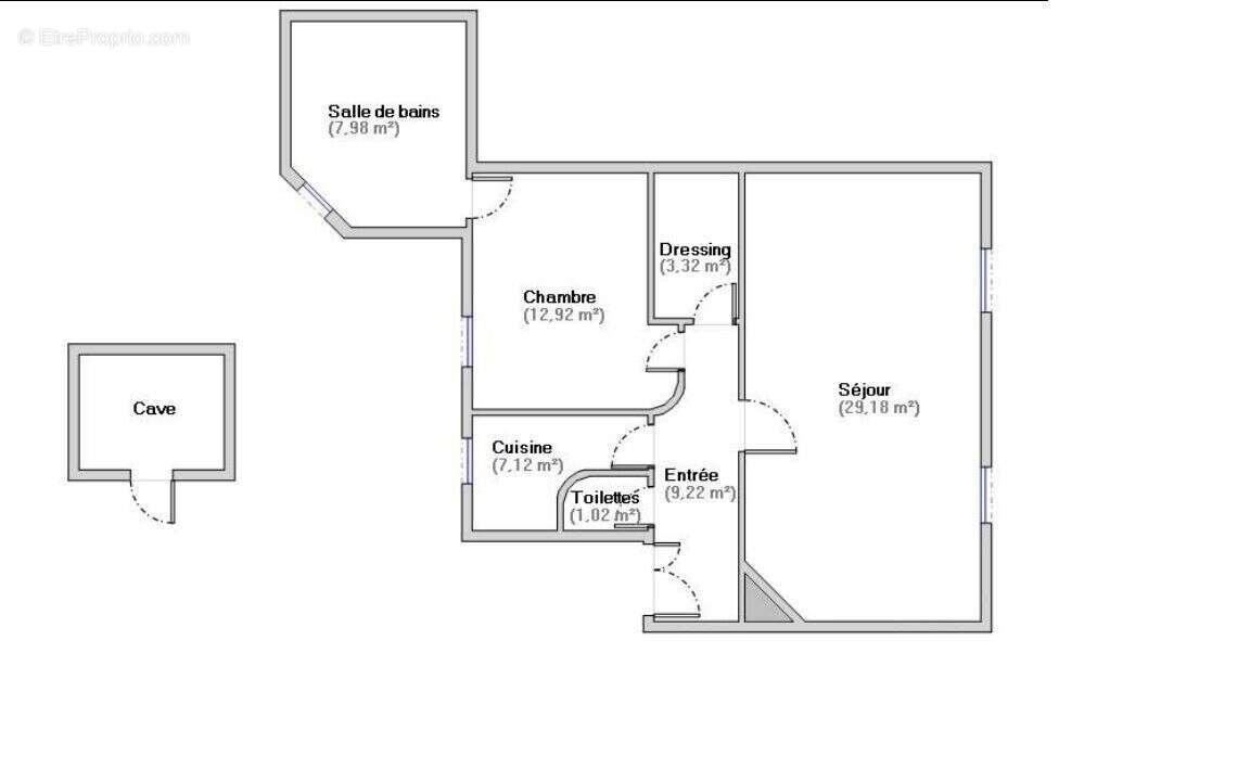
A deux pas de la tour Eiffel, situé dans une rue très calme et recherchée du 15e arrondissement, à proximité immédiate du métro Dupleix (Ligne 6), du RER C, des commerces de la rue Lourmel et du centre Beaugrenelle (galerie commerciale, supermarché), cet appartement de 3 pièces transformé en très grand 2 pièces offre une très belle distribution (plan 3D en lien).
Situé au 3éme étage avec ascenseur d'un bel immeuble haussmannien en pierre de taille, vous serez séduit par le charme de l'ancien : belle hauteur sous plafond, parquet, moulures et cheminées complète les prestations de qualités.

Détails du bien :
oAppartement traversant et lumineux
oTrès grand séjour / salle à manger avec double cheminée
oGrande chambre au calme sur cour, dressing
oSalle de bains avec douche à l'italienne et baignoire
oCuisine indépendante entièrement équipée
oChauffage / eau chaude individuel au gaz (chaudière récente)
oPorte blindée
o WC séparé
oDouble vitrage
oCave

Un appartement chaleureux, traversant avec de très beaux volumes à visiter sans tarder.
Copropriété très bien tenue, pas de procédure en cours, immeuble ancien de standing.
Charges courantes : 220 / mois (pas de gros travaux voté)
Taxe foncière : 1 560
DPE : D/D
Visite 3 D : https://my.matterport.com/show /? m2KwmoEknSh2

-
Diffuze : votre prestataire de diffusion d'annonces immobilières.
Informations LOI ALUR :
Honoraires charge vendeur. (gedeon_52960_32239006)
Voir plus

Référence: 3909-10
Honoraires à la charge du vendeur.
DPE
A
B
C
D
E
F
G
GES
A
B
C
D
E
F
G

Prêt immobilier

Vous souhaitez connaître votre capacité d’emprunt et trouver le meilleur crédit immobilier ?
Réaliser une simulation gratuite

Photo 1 - Appartement à PARIS-15E
Photo 1
Photo 2 - Appartement à PARIS-15E
Photo 2
Photo 3 - Appartement à PARIS-15E
Photo 3
Photo 4 - Appartement à PARIS-15E
Photo 4
Photo 5 - Appartement à PARIS-15E
Photo 5
Photo 6 - Appartement à PARIS-15E
Photo 6
Photo 7 - Appartement à PARIS-15E
Photo 7
Photo 8 - Appartement à PARIS-15E
Photo 8
Photo 9 - Appartement à PARIS-15E
Photo 9
Ce site est protégé par reCAPTCHA la Politique de confidentialité et les Conditions d’utilisation de Google s’appliquent.
Obtenir un prêt immobilier au meilleur taux ?

En poursuivant votre navigation sans modifier vos paramètres, vous acceptez l'utilisation de cookies susceptibles de réaliser des statistiques de visite. Cliquez ici pour plus d'informations