Bénéficiez des services de nos partenaires locaux soigneusement sélectionnés
pour vous accompagner dans votre parcours d'achat immobilier

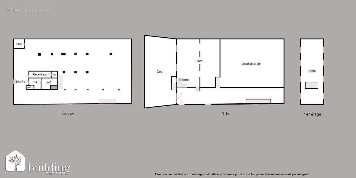
À vendre - courbevoie hôtel de ville - local commercial de 3 niveaux de 740,44 m² avec jardin

— Courbevoie 92400 —
3 100 000 €
750 m²

Nos partenaires locaux
Situé à Courbevoie, au coeur du quartier dynamique de l'Hôtel de Ville, BUILDING PARTNERS vous propose à la vente un vaste local commercial en triplex, d'une surface totale au sol de 740,44 m² (724,62 m² loi Carrez), complété par un agréable jardin privatif de 121,24 m². Ce bien se déploie sur trois niveaux. Le rez-de-chaussée propose un premier plateau de 225,83 m² avec trois espaces distincts, permettant une flexibilité d'usage rare. Le sous-sol, d'une surface de 412,16 m², comprend un local chaufferie, ainsi que deux espaces d'eau avec sanitaires. Le premier étage offre un plateau supplémentaire de 86,63 m². Des travaux sont à prévoir afin d'exploiter pleinement le potentiel de cette ancienne école privée. Grâce à ses volumes généreux et son emplacement privilégié, ce local se prête parfaitement à une variété d'activités professionnelles ou commerciales : salle de sport, clinique privée, laboratoire de cuisine, centre de formation, espace de coworking ou encore parking privatif. L'environnement est particulièrement recherché, à proximité immédiate des transports (SNCF, métro ligne 1, tramway T2, bus), des commerces et des services municipaux. Ce bien rare à la vente séduira les investisseurs et entrepreneurs à la recherche d'un lieu stratégique et adaptable. N'hésitez pas à nous contacter pour plus d'informations ou organiser une visite. Depuis 1993, BUILDING PARTNERS accompagne les propriétaires dans la vente de biens immobiliers de standing sur l'ouest parisien. Notre force ? Une organisation unique avec deux rôles experts : >Les Brokers, spécialisés dans la prospection et la valorisation de votre bien. >Les Sellers, experts en négociation et en mise en relation avec notre portefeuille d'acheteurs qualifiés. Avec 5 agences implantées au coeur des quartiers les plus recherchés (Paris 16e, Paris 17e, Neuilly, Levallois, Courbevoie), nous vous offrons une visibilité maximale, un accompagnement personnalisé et un engagement total jusqu'à la signature. Confiez-nous votre bien pour une vente rapide, au meilleur prix. Estimation offerte, confidentielle et sans engagement.
Voir plus

Honoraires à la charge du vendeur.
Barème des honoraires

Prêt immobilier

Vous souhaitez connaître votre capacité d’emprunt et trouver le meilleur crédit immobilier ?
Réaliser une simulation gratuite

Commerce à COURBEVOIE
Commerce à COURBEVOIE
Commerce à COURBEVOIE
Commerce à COURBEVOIE
Commerce à COURBEVOIE
Commerce à COURBEVOIE
Commerce à COURBEVOIE
Commerce à COURBEVOIE
Commerce à COURBEVOIE
Commerce à COURBEVOIE
Commerce à COURBEVOIE
Ce site est protégé par reCAPTCHA la Politique de confidentialité et les Conditions d’utilisation de Google s’appliquent.
Obtenir un prêt immobilier au meilleur taux ?

En poursuivant votre navigation sans modifier vos paramètres, vous acceptez l'utilisation de cookies susceptibles de réaliser des statistiques de visite. Cliquez ici pour plus d'informations