Bénéficiez des services de nos partenaires locaux soigneusement sélectionnés
pour vous accompagner dans votre parcours d'achat immobilier

2 pièces lumineux avec balcon saint-maur-des-fossés proche rer a et commodités

— Saint-Maur-Des-Fosses 94100 —
454 000 €
55 m²
2 pièces
parkingbalcon/terrasse

Nos partenaires locaux
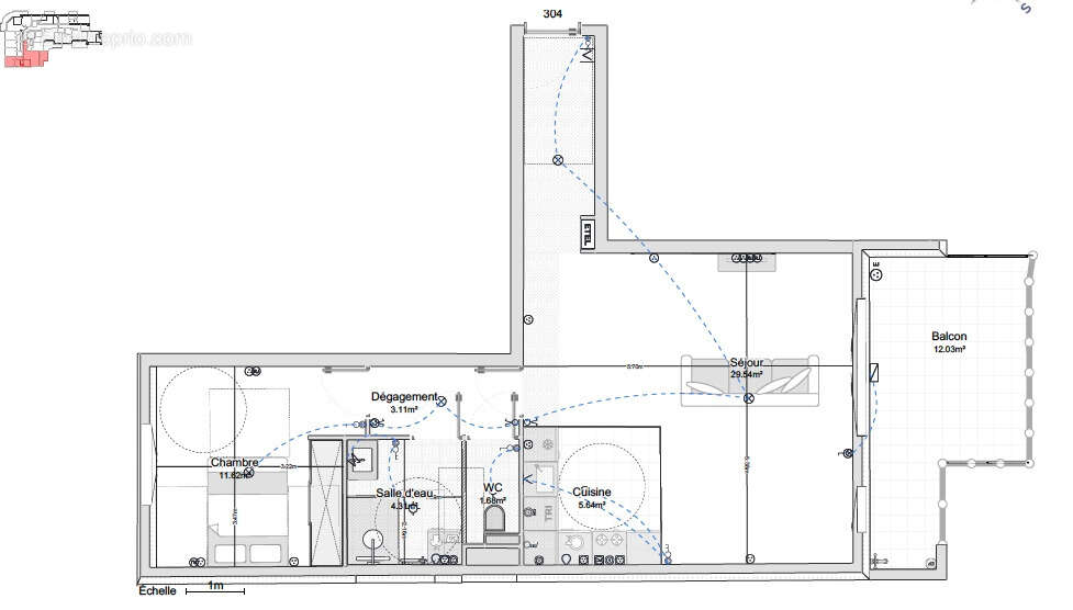
Découvrez ce superbe 2 pièces de 56m2 avec un balcon de 12m2, situé au cœur de Saint-Maur-des-Fossés idéalement situé au 3ème étage d’une résidence contemporaine en pierre de taille, cet appartement se compose :
- D’un Séjour de 29,54 m2, baigné de lumière naturelle grâce à ses grandes fenêtres, s’ouvre sur un balcon spacieux
- D’une cuisine indépendante de 6m2
- D’une chambre de 12m2, calme et cosy,
- D’une salle d’eau et les WC séparés
Résidence haut de gamme avec façades en pierre de taille et espaces paysagers soignés.
Proche de toutes commodités : commerces de qualité, écoles, transports (RER A à 15 min à pied), et bords de Marne
Quartier recherché : entre tranquillité résidentielle et dynamisme urbain, à deux pas du centre-ville et des infrastructures culturelles (théâtre, cinéma, médiathèque)
Contactez-nous dès aujourd’hui pour organiser une visite et faire de ce projet votre nouvelle adresse.
Pas de frais d’agence Frais de notaire réduits - Photo non-contractuelle
Voir plus

Barème des honoraires
DPE
A
B
C
D
E
F
G
GES
A
B
C
D
E
F
G

Prêt immobilier

Vous souhaitez connaître votre capacité d’emprunt et trouver le meilleur crédit immobilier ?
Réaliser une simulation gratuite

Appartement à SAINT-MAUR-DES-FOSSES
Appartement à SAINT-MAUR-DES-FOSSES
Appartement à SAINT-MAUR-DES-FOSSES
Appartement à SAINT-MAUR-DES-FOSSES
Ce site est protégé par reCAPTCHA la Politique de confidentialité et les Conditions d’utilisation de Google s’appliquent.
Obtenir un prêt immobilier au meilleur taux ?

En poursuivant votre navigation sans modifier vos paramètres, vous acceptez l'utilisation de cookies susceptibles de réaliser des statistiques de visite. Cliquez ici pour plus d'informations