Appartement de 80m² avec combles aménageables

— Noisy-Le-Sec 93130 —
199 000 €
80 m²
4 pièces

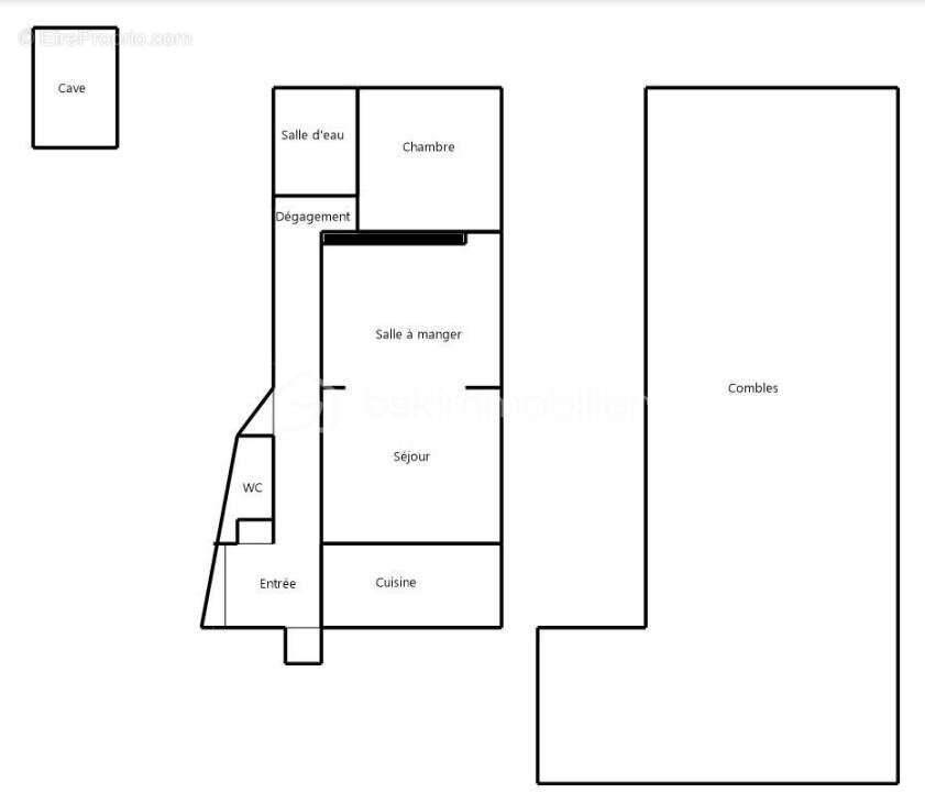
RETOUR À LA VENTE Découvrez ce spacieux appartement de 80 m²environ, situé au dernier étage d'un immeuble de 3 étages, offrant un POTENTIEL EXCEPTIONNEL d'aménagement.

Dès l'entrée, vous trouverez un placard intégré ainsi que des toilettes indépendants, avec la possibilité de les transformer en salle d'eau complète.

L'appartement se compose également d' une cuisine séparée et un double séjour lumineux. Ce dernier peut facilement être réagencé pour créer une chambre supplémentaire selon vos besoins.

Un long couloir mène à l'espace nuit, composé d'une chambre spacieuse, d'une grande salle d'eau avec la possibilité de la transformer en 3ème chambre.

Le véritable atout de cet appartement réside dans ses combles de 80 m² au sol (non comptabilisés dans la surface habitable), offrant de nombreuses possibilités d'aménagement : création d'un duplex, espaces de rangement, ou encore chambres d'enfants selon vos envies.

Une cave complète ce bien, idéal pour le stockage.

Travaux à prévoir, offrant l'opportunité de façonner cet espace selon votre goût et vos besoins.

Un bien rare avec un fort potentiel d'agrandissement ! Ne tardez pas à le découvrir !

(1ère photo non contractuelle)

Pour plus d'informations ou une visite, contactez moi dès maintenant au [Coordonnées masquées]

Cette annonce référence 278660 vous est présentée par votre agent commercial BSK Immobilier BARIZA BOUDISSA (EI) immatriculé au RSAC de BOBIGNY (93000) sous le numéro 9[Coordonnées masquées]012.

Prix du bien : 199 000,00 €
Les honoraires d'agence sont à la charge du vendeur.

A propos de la copropriété :
Pas de procédure en cours.
Nombre de lots : 8
Charges prévisionnelles annuelles : 1 620,00 €

A propos des performances énergétiques :
Date de réalisation du diagnostic énergétique : 10/11/2022
Score DPE : 512 kWhEP/m²/an
Score GES : 112 kgepCO2/m²/an
Montant estimé des dépenses annuelles d'énergie pour un usage standard : entre 2520.00 € et 3470.00 € par an. Prix moyens des énergies indexés sur l'année 2021 (abonnements compris).

Les informations sur les risques auxquels ce bien est exposé sont disponibles sur le site Géorisques : www.georisques.gouv.fr
Voir plus

Référence: 278660
Bien en copropriété. Nombre de lots : 8. Charges de copropriété : 135 €.
Honoraires à la charge du vendeur.
DPE
A
B
C
D
E
F
G
GES
A
B
C
D
E
F
G

Prêt immobilier

Vous souhaitez connaître votre capacité d’emprunt et trouver le meilleur crédit immobilier ?
Réaliser une simulation gratuite

Appartement à NOISY-LE-SEC
Appartement à NOISY-LE-SEC
Appartement à NOISY-LE-SEC
Appartement à NOISY-LE-SEC
Appartement à NOISY-LE-SEC
Appartement à NOISY-LE-SEC
Appartement à NOISY-LE-SEC
Appartement à NOISY-LE-SEC
Appartement à NOISY-LE-SEC
Appartement à NOISY-LE-SEC
Appartement à NOISY-LE-SEC
Appartement à NOISY-LE-SEC
Appartement à NOISY-LE-SEC
Ce site est protégé par reCAPTCHA la Politique de confidentialité et les Conditions d’utilisation de Google s’appliquent.
Obtenir un prêt immobilier au meilleur taux ?

En poursuivant votre navigation sans modifier vos paramètres, vous acceptez l'utilisation de cookies susceptibles de réaliser des statistiques de visite. Cliquez ici pour plus d'informations