Bénéficiez des services de nos partenaires locaux soigneusement sélectionnés
pour vous accompagner dans votre parcours d'achat immobilier

Terrain 1280m² à rambouillet

— Rambouillet 78120 —
360 900 €
1 280 m²
jardin

Nos partenaires locaux
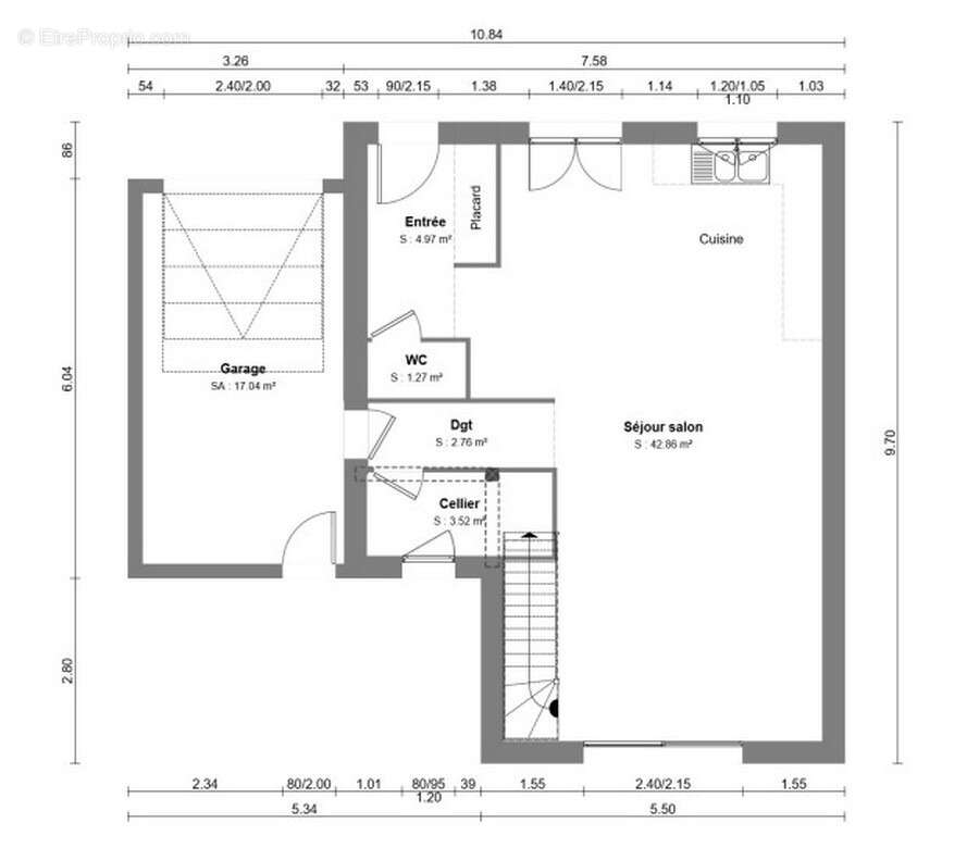
À seulement 10 min de Rambouillet, découvrez ce beau projet de maison neuve à construire sur un terrain plat et arboré de 1 280 m², situé dans un environnement calme et verdoyant.
Cette maison moderne de 105 m² habitables offre :
3 chambres à l'étage,
Une belle pièce de vie lumineuse avec cuisine ouverte,
Salle de bains + 2 WC,
Garage acollé et cellier.
Ses atouts :
Construction neuve RE 2020
Excellente isolation et chauffage économique (pompe à chaleur)
Plan 100 % personnalisable
Grand terrain de 1 280 m², idéal pour terrasse, piscine ou jardin
Saint-Hilarion (78125) - cadre paisible, à proximité de Rambouillet, commerces et gare.
Étude gratuite et personnalisée sur demande !
Il est à vendre pour la somme de 360 900 €. Contactez Orlando PINTO BARRETO (tél : [Coordonnées masquées]) pour obtenir de plus amples informations sur le ce projet.
Voir plus

Référence: OPB2323325

Prêt immobilier

Vous souhaitez connaître votre capacité d’emprunt et trouver le meilleur crédit immobilier ?
Réaliser une simulation gratuite

Terrain à RAMBOUILLET
Terrain à RAMBOUILLET
Terrain à RAMBOUILLET
Terrain à RAMBOUILLET
Ce site est protégé par reCAPTCHA la Politique de confidentialité et les Conditions d’utilisation de Google s’appliquent.
Obtenir un prêt immobilier au meilleur taux ?

En poursuivant votre navigation sans modifier vos paramètres, vous acceptez l'utilisation de cookies susceptibles de réaliser des statistiques de visite. Cliquez ici pour plus d'informations