Bénéficiez des services de nos partenaires locaux soigneusement sélectionnés
pour vous accompagner dans votre parcours d'achat immobilier

Appartement 3 pièce(s)-cave

— Morlaix 29600 —
75 950 €
86 m²
3 pièces
balcon/terrasse

Nos partenaires locaux
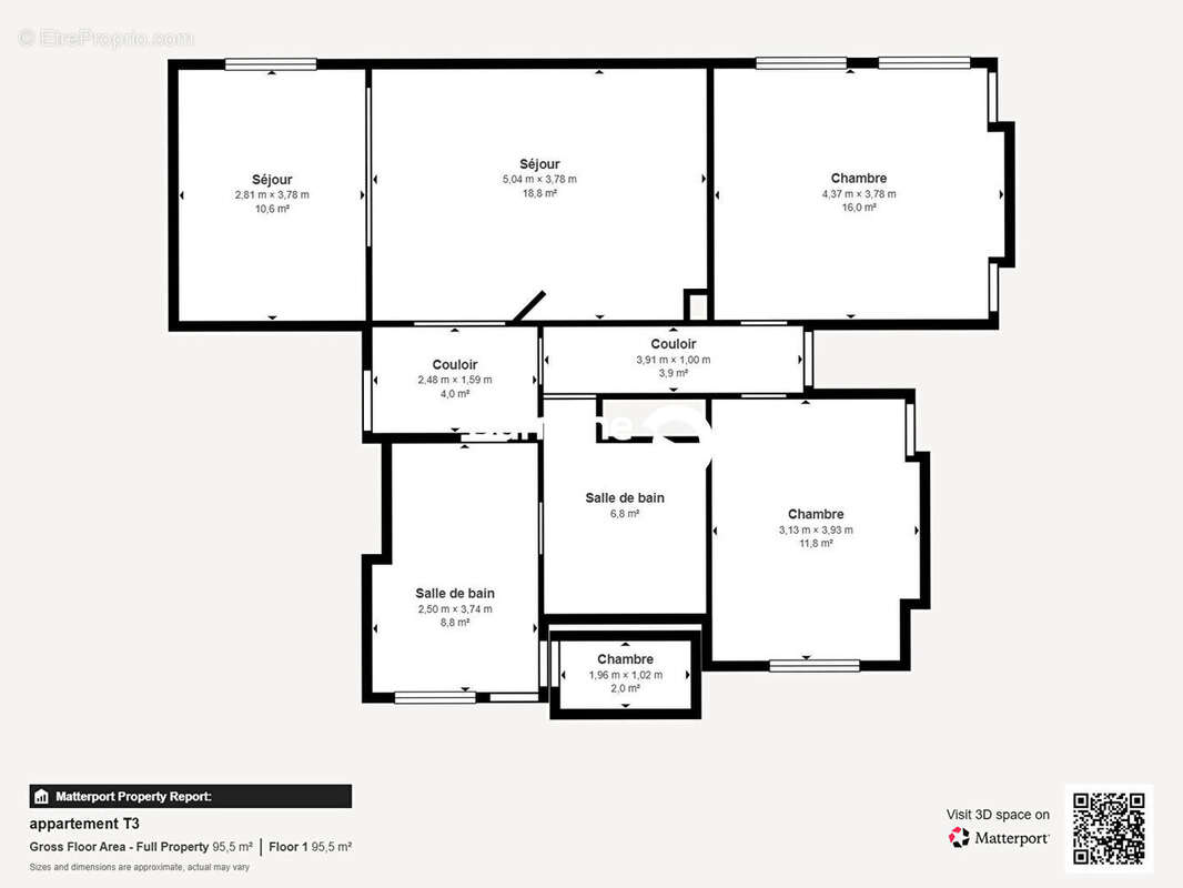
***VISITE VIRTUELLE SUR NOTRE SITE*** A deux minutes du centre-ville de Morlaix et à proximité immédiate des commodités, cet appartement de 85,5 m² situé au 3ème étage d'un immeuble de quatre niveaux sans ascenseur ,représente une véritable opportunité pour un projet d'investissement ou une première acquisition à rénover. L'appartement se compose de deux chambres, d'un séjour lumineux, d'une cuisine à créer, d'une loggia, ainsi que d'une salle d'eau neuve, déjà rénovée et prête à l'emploi. Une cave privative vient compléter l'ensemble, idéale pour le stockage. Entièrement à rénover (hors salle d'eau), ce bien offre un fort potentiel d'aménagement, permettant de créer un intérieur moderne et optimisé selon vos envies. Son volume généreux, sa configuration et son emplacement stratégique en font un excellent candidat pour de la location longue durée, très recherchée sur le secteur. Un appartement à transformer à votre image, avec un beau potentiel, une salle d'eau déjà modernisée et une localisation idéale. Notre agence Barraine de Saint Pol de Léon reste bien entendu à votre disposition pour tout complément d'information ou pour convenir d'une visite. (8.50 % honoraires TTC à la charge de l'acquéreur.) Copropriété de 20 lots - dont 10 lots habitation. Charges annuelles : 834.6 euros.
Voir plus

Référence: MX00433
Honoraires d'agence de 8.5% à la charge de l'acquéreur
Barème des honoraires
DPE
A
B
C
D
E
F
G
GES
A
B
C
D
E
F
G

Prêt immobilier

Vous souhaitez connaître votre capacité d’emprunt et trouver le meilleur crédit immobilier ?
Réaliser une simulation gratuite

Appartement à MORLAIX
Appartement à MORLAIX
Appartement à MORLAIX
Appartement à MORLAIX
Appartement à MORLAIX
Appartement à MORLAIX
Appartement à MORLAIX
Appartement à MORLAIX
Appartement à MORLAIX
Appartement à MORLAIX
Appartement à MORLAIX
Appartement à MORLAIX
Appartement à MORLAIX
Appartement à MORLAIX
Appartement à MORLAIX
Appartement à MORLAIX
Appartement à MORLAIX
Appartement à MORLAIX
Appartement à MORLAIX
Appartement à MORLAIX
Ce site est protégé par reCAPTCHA la Politique de confidentialité et les Conditions d’utilisation de Google s’appliquent.
Obtenir un prêt immobilier au meilleur taux ?

En poursuivant votre navigation sans modifier vos paramètres, vous acceptez l'utilisation de cookies susceptibles de réaliser des statistiques de visite. Cliquez ici pour plus d'informations