Bénéficiez des services de nos partenaires locaux soigneusement sélectionnés
pour vous accompagner dans votre parcours d'achat immobilier

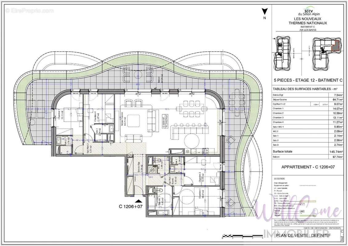
Appartement t5 de 145m² avec 2 stationnements 'les nouveaux thermes'

— Aix-Les-Bains 73100 —
1 725 000 €
145 m²
5 pièces
parkingbalcon/terrasseascenseur

Nos partenaires locaux
À Aix-les-Bains, au cur de la prestigieuse résidence «Les Nouveaux Thermes» - Découvrez cet appartement T5 dexception de 145,74 m² au 12ème étage du bâtiment SUD, offrant une triple exposition est/SUD/ouest Cet appartement unique séduit par sa remarquable distribution intérieure : une entrée, une pièce de vie spectaculaire de près de 64,74 m² intégrant séjour et cuisine, baignée de lumière grâce à de larges baies vitrées souvrant sur une terrasse végétalisée de 67,74 m² orientée EstSUDOuest. Celle-ci offre des vues panoramiques à couper le souffle sur les massifs alpins et le lac du Bourget. La partie nuit comprend : 3 chambres avec salle deau, une chambre, une salle de bains avec WC ainsi quun WC indépendant. Vendu avec 1 box et une place de parking en sous-sol sécurisé. La résidence « Les Nouveaux Thermes » se distingue par ses prestations haut de gamme et son engagement environnemental exemplaire : façades végétalisées sur plus de 3,5 km, plus de 15 000 plantes, toitures vertes, récupération des eaux pluviales et planchers chauffants/rafraîchissants par géothermie. Contactez votre agence WellCome Immobilier pour réserver cet appartement dexception parmi les premiers lots disponibles ! Frais de notaire réduits Programme certifié RE2020 seuil 2022 & NF Habitat HQE Livraison 1er trimestre 2029 Surface CARREZ : 145.74 m²
Voir plus

Référence: 73028787
Barème des honoraires

Prêt immobilier

Vous souhaitez connaître votre capacité d’emprunt et trouver le meilleur crédit immobilier ?
Réaliser une simulation gratuite

Appartement à AIX-LES-BAINS
Appartement à AIX-LES-BAINS
Appartement à AIX-LES-BAINS
Appartement à AIX-LES-BAINS
Appartement à AIX-LES-BAINS
Appartement à AIX-LES-BAINS
Appartement à AIX-LES-BAINS
Appartement à AIX-LES-BAINS
Ce site est protégé par reCAPTCHA la Politique de confidentialité et les Conditions d’utilisation de Google s’appliquent.
Obtenir un prêt immobilier au meilleur taux ?

En poursuivant votre navigation sans modifier vos paramètres, vous acceptez l'utilisation de cookies susceptibles de réaliser des statistiques de visite. Cliquez ici pour plus d'informations