Exclusivite : a vendre gouesnou penhoat maison plain pied t5 - 3 chambres

— Gouesnou 29850 —
317 250 €
95 m² / 420 m²
5 pièces
balcon/terrassejardin

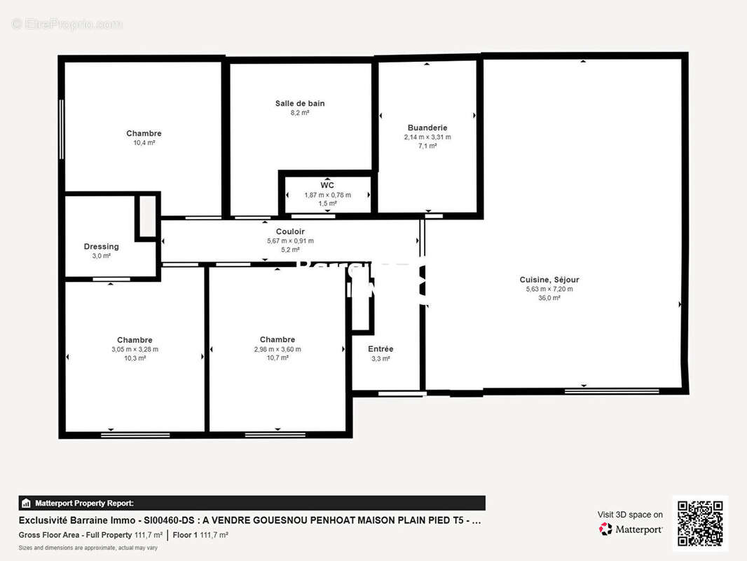
A VENDRE GOUESNOU PENHOAT Référence : SI00460-DS Découvrez cette magnifique maison moderne à vendre, située à Gouesnou plus précisément dans le secteur de Penhoat, offrant un cadre de vie idéal. Avec une surface habitable de 95 m² et un terrain de 420 m², cette propriété de plain-pied se compose de 5 pièces, dont 3 chambres spacieuses. La cuisine américaine aménagée et équipée est un véritable atout pour les amateurs de gastronomie. Le chauffage au sol, alimenté par une pompe à chaleur air/eau, assure un confort optimal tout au long de l'année. La maison, construite en 2021, est en excellent état et dispose de fenêtres en aluminium double vitrage et de volets roulants électriques. La salle de bains est équipée d'une douche et d'une baignoire et de deux vasques, offrant ainsi un espace optimal pour une famille. Idéalement située, vous serez à seulement 0,50 km des commerces et à 1 minute d'un accès aux transports en commun. Les écoles, telles que le Groupe Scolaire du Château d'Eau et l'École Primaire Saint-Joseph, sont accessibles en 3 minutes. A l'extérieur, vous pourrez profiter d'une terrasse de 30 m², parfaite pour vos moments de détente. Le stationnement est facilité grâce à un espace extérieur dédié. Ce bien rare sur le marché combine modernité, confort et proximité des commodités. Ne manquez pas cette opportunité, contactez l'Agence Barraine IMMO Brest - Siam pour plus d'informations. (5.75 % honoraires TTC à la charge de l'acquéreur.)
Voir plus

Honoraires d'agence de 5.75% à la charge de l'acquéreur
Barème des honoraires
DPE
A
B
C
D
E
F
G
GES
A
B
C
D
E
F
G

Prêt immobilier

Vous souhaitez connaître votre capacité d’emprunt et trouver le meilleur crédit immobilier ?
Réaliser une simulation gratuite

Maison à GOUESNOU
Maison à GOUESNOU
Maison à GOUESNOU
Maison à GOUESNOU
Maison à GOUESNOU
Maison à GOUESNOU
Maison à GOUESNOU
Maison à GOUESNOU
Maison à GOUESNOU
Maison à GOUESNOU
Maison à GOUESNOU
Maison à GOUESNOU
Maison à GOUESNOU
Maison à GOUESNOU
Maison à GOUESNOU
Maison à GOUESNOU
Maison à GOUESNOU
Maison à GOUESNOU
Maison à GOUESNOU
Maison à GOUESNOU
Ce site est protégé par reCAPTCHA la Politique de confidentialité et les Conditions d’utilisation de Google s’appliquent.
Obtenir un prêt immobilier au meilleur taux ?

En poursuivant votre navigation sans modifier vos paramètres, vous acceptez l'utilisation de cookies susceptibles de réaliser des statistiques de visite. Cliquez ici pour plus d'informations