Commerce 819m² à serres-castet

— Serres-Castet 64121 —
603 200 €
819 m² / 3 659 m²

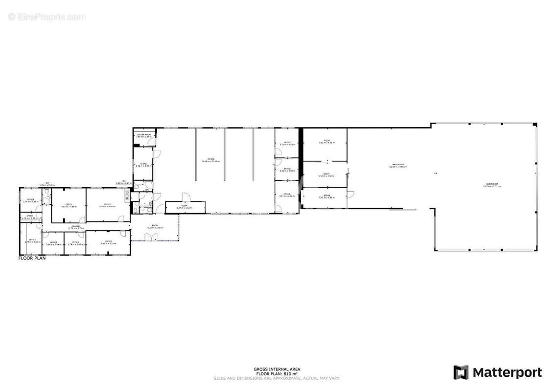
Local commercial en bon état d'une surface de 819 m2 comprenant des bureaux (surface d'environ 401 m2) et un entrepôt (surface d'environ 418 m2), situé dans une zone industrielle et commerciale à proximité de la bretelle d'autoroute. Le terrain d'une superficie d'environ 3 659 m2 comprend de nombreux emplacements de stationnement entièrement goudronné et des espaces verts. Bâtiment accessible aux camions de toutes tailles et terrain entièrement clôturé. Prix HT frais d'agence inclus.

Honoraires inclus de 4% à la charge de l'acquéreur. Prix hors honoraires 580 000 €. DPE en cours. Les informations sur les risques auxquels ce bien est exposé sont disponibles sur le site Géorisques : georisques.gouv.fr.
Voir plus

Référence: VP1420
Honoraires d'agence de 4% à la charge de l'acquéreur
Barème des honoraires

Prêt immobilier

Vous souhaitez connaître votre capacité d’emprunt et trouver le meilleur crédit immobilier ?
Réaliser une simulation gratuite

Commerce à SERRES-CASTET
Commerce à SERRES-CASTET
Commerce à SERRES-CASTET
Commerce à SERRES-CASTET
Commerce à SERRES-CASTET
Commerce à SERRES-CASTET
Commerce à SERRES-CASTET
Commerce à SERRES-CASTET
Commerce à SERRES-CASTET
Ce site est protégé par reCAPTCHA la Politique de confidentialité et les Conditions d’utilisation de Google s’appliquent.
Obtenir un prêt immobilier au meilleur taux ?

En poursuivant votre navigation sans modifier vos paramètres, vous acceptez l'utilisation de cookies susceptibles de réaliser des statistiques de visite. Cliquez ici pour plus d'informations