Bénéficiez des services de nos partenaires locaux soigneusement sélectionnés
pour vous accompagner dans votre parcours d'achat immobilier

Maison briarde 100m2 terrain 2200m2 secteur rebais 77510

— Coulommiers 77120 —
200 000 €
100 m² / 2 200 m²
5 pièces
balcon/terrassejardin

Nos partenaires locaux
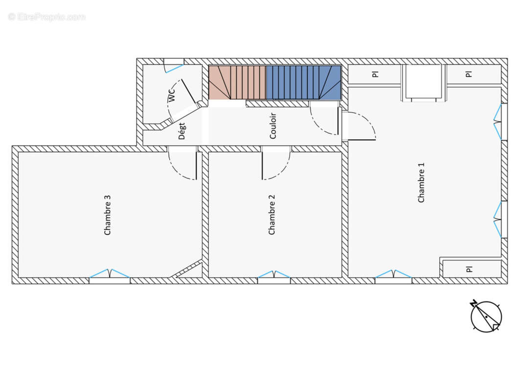
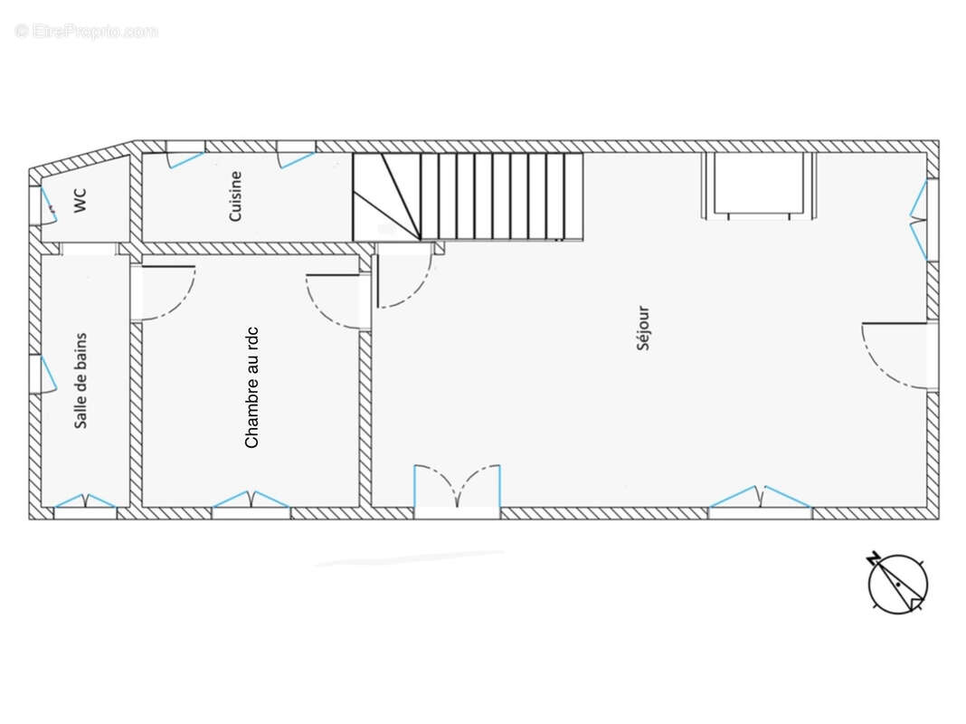
ACTUELLEMENT SOUS OFFRE ! En EXCLUSIVITÉ à l'agence ! Éric VAUGEOIS vous propose cette belle maison Briarde authentique de type 5 de 100 m2 environ sur le secteur tout proche de REBAIS 77510 à moins de 20 minutes en voiture de Coulommiers ou de la Ferté-sous-Jouarre. Elle se compose en RDC : Entrée sur Grand Séjour lumineux - Cuisine Séparée - Chambre - Salle de bains - WC séparé. Étage : Dégagement - 3 Belles Chambres - WC séparé avec point d'eau. Sous combles : Accessible par escalier et aménageable en chambre. Équipements : Chauffage par convecteurs électriques. Cheminée avec foyer fermé. Ballon d'eau chaude électrique. Assainissement individuel. Internet très haut débit par FIBRE. Extérieurs : Superbe terrain de plus de 2200 m2 plat, clos, au calme et sans vis-à-vis accessible par deux portails. Puits. Taxe foncière de 583€/an. A vister sans tarder !
(Nombreuses autres photos complémentaires directement sur le site de l'agence)
------------------------------ Envie de changer de vie professionelle, nous recrutons des agents débutants ou confirmés sur tout le secteur. Contactez nous directement pour saisir cette belle opportunité !
Voir plus

Référence: 1516
Honoraires à la charge du vendeur.
Barème des honoraires
DPE
A
B
C
D
E
F
G
GES
A
B
C
D
E
F
G

Prêt immobilier

Vous souhaitez connaître votre capacité d’emprunt et trouver le meilleur crédit immobilier ?
Réaliser une simulation gratuite

Maison à COULOMMIERS
Maison à COULOMMIERS
Maison à COULOMMIERS
Maison à COULOMMIERS
Maison à COULOMMIERS
Maison à COULOMMIERS
Maison à COULOMMIERS
Maison à COULOMMIERS
Maison à COULOMMIERS
Maison à COULOMMIERS
Maison à COULOMMIERS
Maison à COULOMMIERS
Maison à COULOMMIERS
Maison à COULOMMIERS
Maison à COULOMMIERS
Maison à COULOMMIERS
Maison à COULOMMIERS
Maison à COULOMMIERS
Maison à COULOMMIERS
Maison à COULOMMIERS
Maison à COULOMMIERS
Maison à COULOMMIERS
Maison à COULOMMIERS
Maison à COULOMMIERS
Maison à COULOMMIERS
Maison à COULOMMIERS
Maison à COULOMMIERS
Maison à COULOMMIERS
Maison à COULOMMIERS
Maison à COULOMMIERS
Maison à COULOMMIERS
Maison à COULOMMIERS
Maison à COULOMMIERS
Maison à COULOMMIERS
Maison à COULOMMIERS
Maison à COULOMMIERS
Maison à COULOMMIERS
Maison à COULOMMIERS
Maison à COULOMMIERS
Maison à COULOMMIERS
Maison à COULOMMIERS
Maison à COULOMMIERS
Maison à COULOMMIERS
Maison à COULOMMIERS
Maison à COULOMMIERS
Maison à COULOMMIERS
Maison à COULOMMIERS
Maison à COULOMMIERS
Maison à COULOMMIERS
Maison à COULOMMIERS
Maison à COULOMMIERS
Maison à COULOMMIERS
Maison à COULOMMIERS
Ce site est protégé par reCAPTCHA la Politique de confidentialité et les Conditions d’utilisation de Google s’appliquent.
Obtenir un prêt immobilier au meilleur taux ?

En poursuivant votre navigation sans modifier vos paramètres, vous acceptez l'utilisation de cookies susceptibles de réaliser des statistiques de visite. Cliquez ici pour plus d'informations