Bénéficiez des services de nos partenaires locaux soigneusement sélectionnés
pour vous accompagner dans votre parcours d'achat immobilier

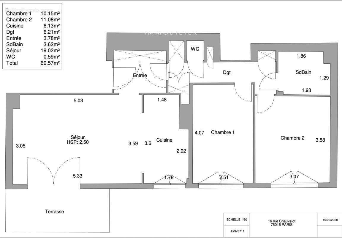
3 pièces avec terrasse vue dégagée- paris xv

— Paris-15e 75015 —
680 000 €
60 m²
3 pièces
balcon/terrasseascenseur

Nos partenaires locaux
Parc Georges Brassens : Appartement de 60,57m2 au 7ème étage avec ascenseur d'un immeuble récent de bon standing. Ce 3 pièces se compose d'une entrée, d'une cuisine équipée et aménagée ouverte sur le séjour donnant sur une terrasse de 9m2 offrant une vue imprenable sur les monuments de Paris, de deux chambres, d'une salle de bains, d'une buanderie, de nombreux rangements ainsi qu'un WC indépendant. En annexe, une cave.

Référence: 85809356
Honoraires d'agence de 4.62% à la charge de l'acquéreur

Prêt immobilier

Vous souhaitez connaître votre capacité d’emprunt et trouver le meilleur crédit immobilier ?
Réaliser une simulation gratuite

Appartement à PARIS-15E
Appartement à PARIS-15E
Appartement à PARIS-15E
Appartement à PARIS-15E
Appartement à PARIS-15E
Appartement à PARIS-15E
Appartement à PARIS-15E
Appartement à PARIS-15E
Appartement à PARIS-15E
Appartement à PARIS-15E
Appartement à PARIS-15E
Appartement à PARIS-15E
Appartement à PARIS-15E
Appartement à PARIS-15E
Appartement à PARIS-15E
Ce site est protégé par reCAPTCHA la Politique de confidentialité et les Conditions d’utilisation de Google s’appliquent.
Obtenir un prêt immobilier au meilleur taux ?

En poursuivant votre navigation sans modifier vos paramètres, vous acceptez l'utilisation de cookies susceptibles de réaliser des statistiques de visite. Cliquez ici pour plus d'informations