Pas de parking à Brousseval pour le moment. Découvrez dès maintenant les parkings dans le département Haute-Marne.
Bénéficiez des services de nos partenaires locaux soigneusement sélectionnés
pour vous accompagner dans votre parcours d'achat immobilier

Duplex 5 pièces, 104m² - dernier étage, traversant avec vue dégagée - rue de belfort, paris

— Paris-11e 75011 —
1 100 000 €
104 m²
5 pièces

Nos partenaires locaux
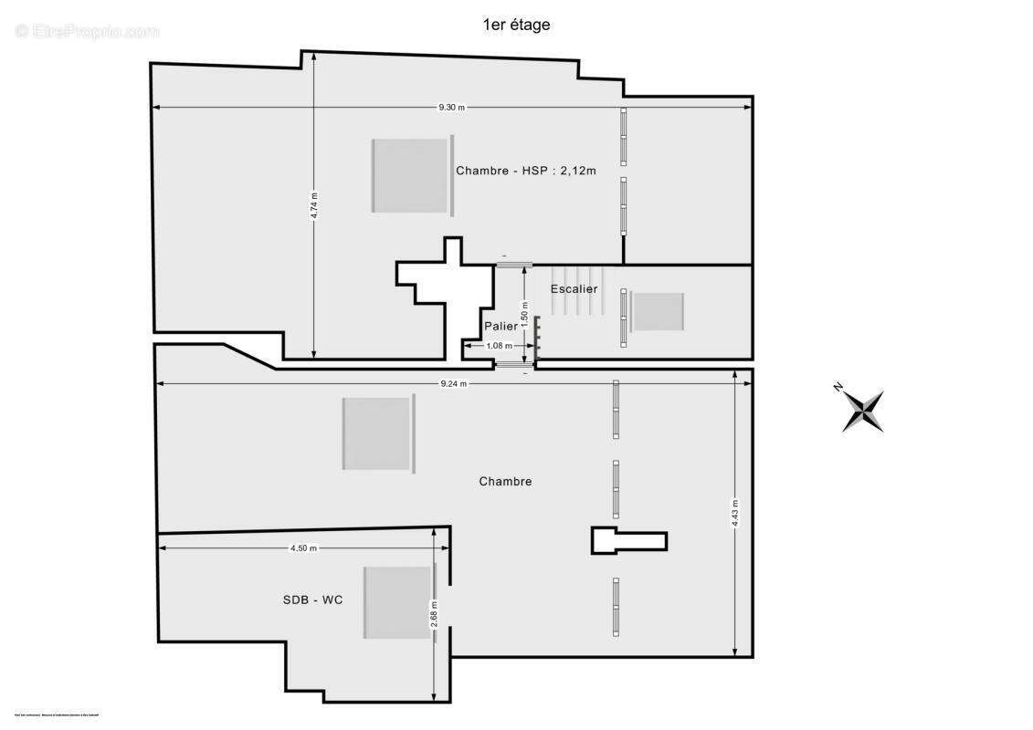
Ce spacieux appartement de 5 pièces est situé au dernier étage d'un immeuble rue de Belfort à Paris, dans le 11ème arrondissement. Le bien, de 104 m² carrez (167 au sol), bénéficie d'une exposition ouest/est et de nombreuses ouvertures qui offrent une grande luminosité. Cet appartement traversant dispose d'une vue dégagée sur un jardin partagé. Chaque pièce de cet appartement a été soigneusement optimisée pour offrir un agencement fonctionnel et pratique.

Planifiez facilement votre visite en choisissant le créneau qui vous convient depuis le site d'Hosman.

L'appartement comprend un vaste salon avec moulures et parquet, trois chambres spacieuses, un grand espace cuisine/salle à manger fonctionnel, deux salles de bain et deux toilettes. Le bien dispose d'une cave saine pour faciliter vos rangements. Le chauffage et la production d'eau chaude sont assurés par un système individuel au gaz, tandis que toutes les fenêtres sont équipées de double vitrage pour un meilleur confort thermique et acoustique.

La taxe foncière annuelle est de 1 850 €. Ce bien est soumis au statut de copropriété avec des charges de copropriété s'élevant à 960 € par trimestre. Une réfection de la toiture a été réalisée avec isolation en 2011, et les parties communes de l'immeuble sont en bon état.

Localisation du bien :

Commodités : À proximité immédiate, retrouvez divers commerces, restaurants et infrastructures culturelles.

Espaces verts : Situé à quelques pas du Square de la Roquette.

Écoles : Accès aux écoles maternelle et primaire Bastille, et au collège Voltaire.

Transports : Proche des stations Philippe Auguste (ligne 2) et Alexandre Dumas (ligne 2), à environ 5 minutes à pied.

Hosman s'efforce de réinventer l'agence immobilière en offrant un service innovant et transparent aux acheteurs et aux vendeurs. Nos frais d'agence sont de 22 000 euros au pourcentage à la charge du vendeur.

Si vous êtes un professionnel de l'immobilier (agent, mandataire ou chasseur immobilier), sachez que toutes les annonces Hosman sont ouvertes à la collaboration. N'hésitez pas à nous contacter pour en discuter.
Voir plus

Référence: cc3a14
Bien en copropriété.
Honoraires à la charge du vendeur.
DPE
A
B
C
D
E
F
G
GES
A
B
C
D
E
F
G

Prêt immobilier

Vous souhaitez connaître votre capacité d’emprunt et trouver le meilleur crédit immobilier ?
Réaliser une simulation gratuite

Appartement à PARIS-11E
Appartement à PARIS-11E
Appartement à PARIS-11E
Appartement à PARIS-11E
Appartement à PARIS-11E
Appartement à PARIS-11E
Appartement à PARIS-11E
Appartement à PARIS-11E
Appartement à PARIS-11E
Appartement à PARIS-11E
Appartement à PARIS-11E
Appartement à PARIS-11E
Appartement à PARIS-11E
Appartement à PARIS-11E
Appartement à PARIS-11E
Appartement à PARIS-11E
Appartement à PARIS-11E
Appartement à PARIS-11E
Appartement à PARIS-11E
Appartement à PARIS-11E
Ce site est protégé par reCAPTCHA la Politique de confidentialité et les Conditions d’utilisation de Google s’appliquent.
Obtenir un prêt immobilier au meilleur taux ?

En poursuivant votre navigation sans modifier vos paramètres, vous acceptez l'utilisation de cookies susceptibles de réaliser des statistiques de visite. Cliquez ici pour plus d'informations