Bénéficiez des services de nos partenaires locaux soigneusement sélectionnés
pour vous accompagner dans votre parcours d'achat immobilier

Coup de coeur - bel appartement familial - 120m² - balcon, cheminées, hauteur sous plafond - boulevard de magenta, paris

— Paris-10e 75010 —
1 260 000 €
120 m²
5 pièces
balcon/terrasseascenseur

Nos partenaires locaux
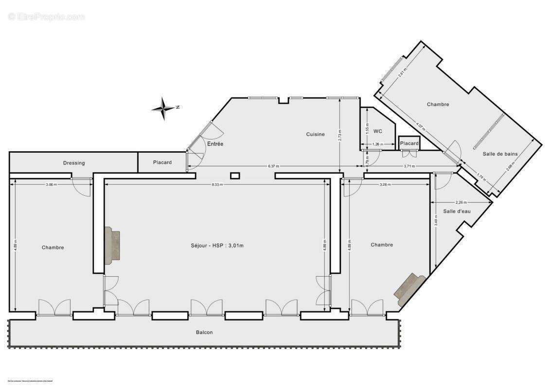
Hosman vous propose à la vente ce splendide appartement familial de 5/6 pièces de 120 m² situé au 2ème étage avec ascenseur d'un bâtiment 1850.

Planifiez facilement votre visite en choisissant le créneau qui vous convient depuis le site d'Hosman.

Entièrement rénové en 2020 : agencement des pièces, huisseries en double vitrage, cuisine, sol, plomberie, peintures. Proche d'une rue récemment piétonnisée, à proximité immédiate des écoles et crèches.
Très belle hauteur sous plafond de 3 mètres.

D'un superficie de 120 m² pondéré (117,64 m² Carrez + balcon de 7,20 m²), exposé Est (baigné de lumière), il offre de très belles prestations : cheminées, moulures au plafond, et parquet.
Ce bien se compose d'une vaste pièce de vie de 41 m², d'une cuisine semi-ouverte, de trois chambres dont une avec dressing de respectivement 15,6 m², 15,5 m², et 12 m², d'une salle d'eau, d'une salle de bain, et d'un WC séparé.
Un balcon filant présente un extérieur de 7,20 m2.
L'appartement offre de nombreux rangements.

Le chauffage et l'eau chaude sont assurés par une installation individuelle au gaz.

Deux caves comptabilisant 12m² complètent ce bien.
Un local à vélo est également présent dans l'immeuble.

Le bien est soumis au statut de copropriété.
Les charges de copropriété s'élèvent à 600 € par trimestre.
La taxe foncière annuelle est de 1963 €.

La localisation du bien offre de nombreuses commodités. À proximité, on trouve des commerces tels que supermarchés et boulangeries, ainsi que des établissements de restauration variés et des espaces culturels. Pour les transports, les stations de métro Gare de l'Est, Gare du Nord, Barbès Rochechouart et Poissonnière sont à quelques minutes à pieds.

Hosman s'efforce de réinventer l'agence immobilière en offrant un service innovant et transparent aux acheteurs et aux vendeurs. Nos frais d'agence sont de 25200 euros au pourcentage à la charge du vendeur.

Si vous êtes un professionnel de l'immobilier (agent, mandataire ou chasseur immobilier), sachez que toutes les annonces Hosman sont ouvertes à la collaboration. N'hésitez pas à nous contacter pour en discuter.
Voir plus

Référence: 25e3a9
Bien en copropriété. Charges de copropriété : 200 €.
Honoraires à la charge du vendeur.
DPE
A
B
C
D
E
F
G
GES
A
B
C
D
E
F
G

Prêt immobilier

Vous souhaitez connaître votre capacité d’emprunt et trouver le meilleur crédit immobilier ?
Réaliser une simulation gratuite

Appartement à PARIS-10E
Appartement à PARIS-10E
Appartement à PARIS-10E
Appartement à PARIS-10E
Appartement à PARIS-10E
Appartement à PARIS-10E
Appartement à PARIS-10E
Appartement à PARIS-10E
Appartement à PARIS-10E
Appartement à PARIS-10E
Appartement à PARIS-10E
Appartement à PARIS-10E
Ce site est protégé par reCAPTCHA la Politique de confidentialité et les Conditions d’utilisation de Google s’appliquent.
Obtenir un prêt immobilier au meilleur taux ?

En poursuivant votre navigation sans modifier vos paramètres, vous acceptez l'utilisation de cookies susceptibles de réaliser des statistiques de visite. Cliquez ici pour plus d'informations