Tassin/limite lyon 5e

— Lyon-5e 69005 —
249 000 €
67 m²
3 pièces
parkingbalcon/terrasse

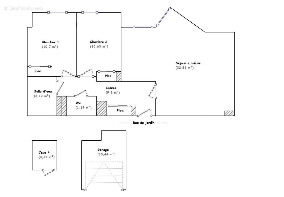
Limite TASSIN / LYON 5ème - Rue Joliot Curie, en retrait de la rue. L'Agence PEDRINI vous propose cet agréable T3 de 67,35 m2 en rez-de-jardin.
Dans une résidence construite en 2006, de qualité, fermée, arborée et bénéficiant d'une piscine.
Cet appartement moderne se compose d'une entrée avec placard, un vaste séjour de 32m2 avec cuisine ouverte et donnant sur le jardin de 30m2 très calme.
L'espace nuit se compose de 2 chambres avec placards, d'une salle d'eau avec douche à l'italienne, et de toilettes séparées.
Un GARAGE + une CAVE sont vendus avec l'appartement (inclus dans le prix).
Un appartement en bon état dans une belle résidence, bénéficiant de la proximité de toutes les commodités (arret de bus Les Battieres au pied de l'immeuble, Supermarché AUCHAN à 8 mn à pied).
Pour toute information complémentaire et pour une visite, Antoine PINEAU [Coordonnées masquées]
Voir plus

Bien en copropriété. Nombre de lots : 213. Charges de copropriété : 1360 €.
Honoraires à la charge du vendeur.
DPE
A
B
C
D
E
F
G
GES
A
B
C
D
E
F
G

Prêt immobilier

Vous souhaitez connaître votre capacité d’emprunt et trouver le meilleur crédit immobilier ?
Réaliser une simulation gratuite

Appartement à LYON-5E
Appartement à LYON-5E
Appartement à LYON-5E
Appartement à LYON-5E
Appartement à LYON-5E
Appartement à LYON-5E
Appartement à LYON-5E
Appartement à LYON-5E
Appartement à LYON-5E
Appartement à LYON-5E
Appartement à LYON-5E
Appartement à LYON-5E
Appartement à LYON-5E
Ce site est protégé par reCAPTCHA la Politique de confidentialité et les Conditions d’utilisation de Google s’appliquent.
Obtenir un prêt immobilier au meilleur taux ?

En poursuivant votre navigation sans modifier vos paramètres, vous acceptez l'utilisation de cookies susceptibles de réaliser des statistiques de visite. Cliquez ici pour plus d'informations