Haute savoie (74), à vendre samoens - domaine skiable grand-massif - appartement t3 82,73 m²

— Samoens 74340 —
495 000 €
83 m²
3 pièces
parkingbalcon/terrasse

Découvrez L'Éterle, une résidence d'exception en devenir, idéalement à du Vallon d'en Haut, proposant 4 superbes appartements T4 et T3, tous exposés plein sud et agrémentés de terrasses et jardins privatifs.

Ce projet, prévu pour 2027, se distingue par une performance énergétique remarquable, grâce à une pompe à chaleur de dernière génération et une isolation irréprochable, garantissant une consommation maîtrisée et un confort optimal en toute saison.

Le promoteur, enfant du pays et fort d'une solide expérience, signe ici une nouvelle réalisation où matériaux nobles et finitions soignées sont au rendez-vous. Les photos présentées témoignent de la qualité de son précédent projet. Photos et plans non contractuels.

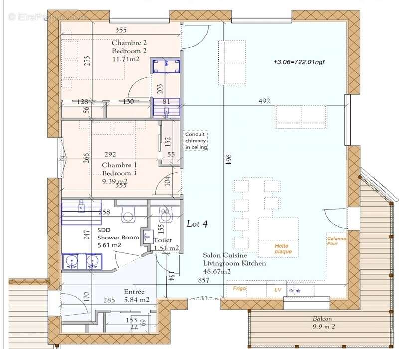
Cet appartement situé à l'étage séduit par une vaste pièce de vie baignée de lumière, de plus de 40 m², prolongée par un balcon exposé plein sud. Sa superbe hauteur sous charpente massive confère une impression d'espace et de volume saisissante. Il comprend également deux chambres, dont une suite parentale. Vous pourrez choisir le garage à votre convenance, de 17,7 à 67,7 m², proposé entre 17 500 € et 34 500 €.

Vous aimerez : son cadre privilégié, son ensoleillement généreux et ses volumes spectaculaires.
Nombre de lots de la copropriété : 4, Montant moyen annuel de la quote-part de charges (budget prévisionnel)(Charges estimatives) : 1200€ soit 100€ par mois. Les honoraires sont à la charge du vendeur.
Les informations sur les risques auxquels ce bien est exposé sont disponibles sur le site Géorisques : www. georisques. gouv. fr.

Réseau Immobilier CAPIFRANCE - Votre agent commercial (RSAC N°508 033 164 - Greffe de ANNECY) Julien BELLENGER Entrepreneur Individuel [Coordonnées masquées] - Réf.933071
Voir plus

Référence: 340936479821
Bien en copropriété. Nombre de lots : 4. Charges de copropriété : 100 €.
Honoraires à la charge du vendeur.

Prêt immobilier

Vous souhaitez connaître votre capacité d’emprunt et trouver le meilleur crédit immobilier ?
Réaliser une simulation gratuite

Appartement à SAMOENS
Appartement à SAMOENS
Appartement à SAMOENS
Appartement à SAMOENS
Appartement à SAMOENS
Appartement à SAMOENS
Appartement à SAMOENS
Appartement à SAMOENS
Ce site est protégé par reCAPTCHA la Politique de confidentialité et les Conditions d’utilisation de Google s’appliquent.
Obtenir un prêt immobilier au meilleur taux ?

En poursuivant votre navigation sans modifier vos paramètres, vous acceptez l'utilisation de cookies susceptibles de réaliser des statistiques de visite. Cliquez ici pour plus d'informations