Maison de plain-pied avec grand jardin – 111 m²

— Coulmiers 45130 —
185 000 €
111 m² / 1 965 m²
4 pièces

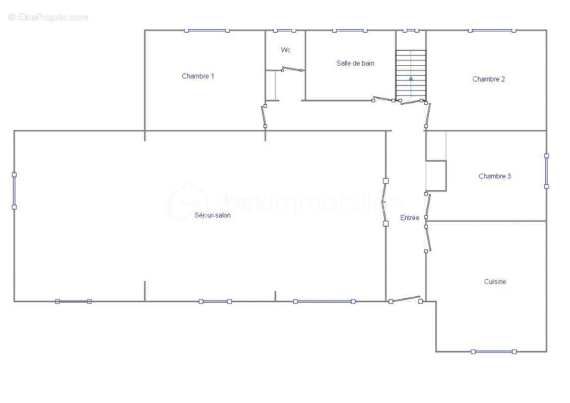
Située sur un terrain clos de 1 965 m², cette maison de 111 m² offre de beaux volumes et un excellent potentiel. Elle se compose d'une entrée donnant sur une cuisine séparée, aménagée et équipée, d'un grand salon-séjour lumineux, de trois chambres, d'une salle de bain et d'un WC indépendant.

Un sous-sol complet, deux vérandas, deux garages, une dépendance, un bûcher et un poulailler complètent ce bien, idéal pour les amateurs d'espace extérieur et de vie pratique. Les combles sont aménageables, offrant la possibilité de créer des pièces supplémentaires selon vos besoins.

L'accès PMR est facilité grâce à un ascenseur extérieur.
Cette maison allie confort, espace et potentiel d'aménagement dans un environnement calme tout en étant proche des commodités.

Cette annonce référence 313356 vous est présentée par votre agent commercial BSK Immobilier MARION PODEVIN (EI) immatriculé au RSAC de ORLEANS (45000) sous le numéro 91[Coordonnées masquées]17.

Prix du bien : 185 000,00 €
Les honoraires d'agence sont à la charge du vendeur.

A propos des performances énergétiques :
Date de réalisation du diagnostic énergétique : 19/03/2025
Score DPE : 526 kWhEP/m²/an
Score GES : 163 kgepCO2/m²/an
Montant estimé des dépenses annuelles d'énergie pour un usage standard : entre 7330.00 € et 9960.00 € par an. Prix moyens des énergies indexés sur l'année 2021 (abonnements compris).

Les informations sur les risques auxquels ce bien est exposé sont disponibles sur le site Géorisques : www.georisques.gouv.fr
Voir plus

Référence: 313356
Honoraires à la charge du vendeur.
DPE
A
B
C
D
E
F
G
GES
A
B
C
D
E
F
G

Prêt immobilier

Vous souhaitez connaître votre capacité d’emprunt et trouver le meilleur crédit immobilier ?
Réaliser une simulation gratuite

Maison à COULMIERS
Maison à COULMIERS
Maison à COULMIERS
Maison à COULMIERS
Maison à COULMIERS
Maison à COULMIERS
Maison à COULMIERS
Maison à COULMIERS
Maison à COULMIERS
Maison à COULMIERS
Ce site est protégé par reCAPTCHA la Politique de confidentialité et les Conditions d’utilisation de Google s’appliquent.
Obtenir un prêt immobilier au meilleur taux ?

En poursuivant votre navigation sans modifier vos paramètres, vous acceptez l'utilisation de cookies susceptibles de réaliser des statistiques de visite. Cliquez ici pour plus d'informations