Bénéficiez des services de nos partenaires locaux soigneusement sélectionnés
pour vous accompagner dans votre parcours d'achat immobilier

Maison 151m2, terrain 715 m2, 10 min coulommiers

— Coulommiers 77120 —
210 000 €
151 m² / 715 m²
5 pièces
jardin

Nos partenaires locaux
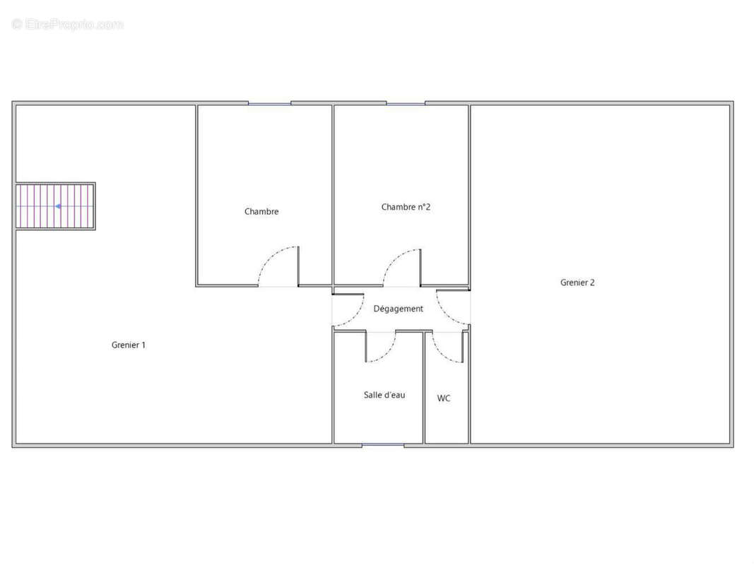
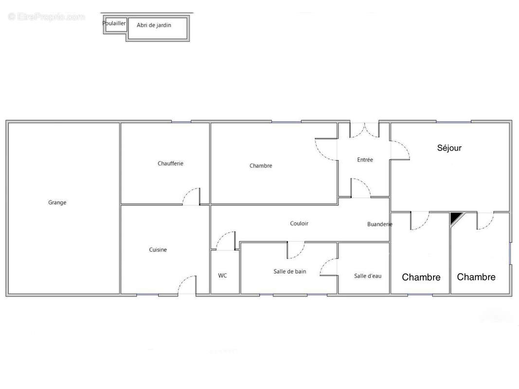
NOUVEAUTÉ en EXCLUSIVITÉ de l'agence ! Éric VAUGEOIS vous présente cette authentique maison briarde de type 6 pièces, d’une surface d’environ 151 m2, idéalement située à moins de 10 minutes de Coulommiers sur la Commune de Jouy-sur-Morin. Rez-de-chaussée : Entrée accueillante, Grand séjour lumineux avec poêle à bois, 3 chambres spacieuses, Salle de bains et salle d’eau, WC séparé, Cuisine indépendante, Cellier À l’étage : Dégagement, 2 belles chambres, WC et salle d’eau, Deux greniers aménageables (possibilité de chambres supplémentaires) Équipements : poele à bois . Assainissement individuel. Internet très haut débit par FIBRE. Extérieurs : Superbe terrain plat et clos de plus de 700 m2, sans vis-à-vis et au calme, Deux portails d’accès, Puits. . Taxe foncière de ???E/an. A vister sans tarder ! (Nombreuses autres photos complémentaires directement sur le site de l'agence) ------------------------------ Envie de changer de vie professionelle, nous recrutons des agents débutants ou confirmés sur tout le secteur. Contactez nous directement pour saisir cette belle opportunité
Voir plus

Référence: 1545
Honoraires à la charge du vendeur.
Barème des honoraires
DPE
A
B
C
D
E
F
G
GES
A
B
C
D
E
F
G

Prêt immobilier

Vous souhaitez connaître votre capacité d’emprunt et trouver le meilleur crédit immobilier ?
Réaliser une simulation gratuite

Maison à COULOMMIERS
Maison à COULOMMIERS
Maison à COULOMMIERS
Maison à COULOMMIERS
Maison à COULOMMIERS
Maison à COULOMMIERS
Maison à COULOMMIERS
Maison à COULOMMIERS
Maison à COULOMMIERS
Maison à COULOMMIERS
Maison à COULOMMIERS
Maison à COULOMMIERS
Maison à COULOMMIERS
Maison à COULOMMIERS
Maison à COULOMMIERS
Maison à COULOMMIERS
Maison à COULOMMIERS
Maison à COULOMMIERS
Maison à COULOMMIERS
Maison à COULOMMIERS
Maison à COULOMMIERS
Maison à COULOMMIERS
Maison à COULOMMIERS
Maison à COULOMMIERS
Maison à COULOMMIERS
Maison à COULOMMIERS
Maison à COULOMMIERS
Maison à COULOMMIERS
Maison à COULOMMIERS
Maison à COULOMMIERS
Maison à COULOMMIERS
Maison à COULOMMIERS
Maison à COULOMMIERS
Maison à COULOMMIERS
Maison à COULOMMIERS
Maison à COULOMMIERS
Maison à COULOMMIERS
Maison à COULOMMIERS
Maison à COULOMMIERS
Maison à COULOMMIERS
Maison à COULOMMIERS
Maison à COULOMMIERS
Maison à COULOMMIERS
Maison à COULOMMIERS
Maison à COULOMMIERS
Maison à COULOMMIERS
Maison à COULOMMIERS
Maison à COULOMMIERS
Maison à COULOMMIERS
Maison à COULOMMIERS
Maison à COULOMMIERS
Maison à COULOMMIERS
Maison à COULOMMIERS
Maison à COULOMMIERS
Maison à COULOMMIERS
Maison à COULOMMIERS
Maison à COULOMMIERS
Maison à COULOMMIERS
Maison à COULOMMIERS
Maison à COULOMMIERS
Maison à COULOMMIERS
Maison à COULOMMIERS
Maison à COULOMMIERS
Ce site est protégé par reCAPTCHA la Politique de confidentialité et les Conditions d’utilisation de Google s’appliquent.
Obtenir un prêt immobilier au meilleur taux ?

En poursuivant votre navigation sans modifier vos paramètres, vous acceptez l'utilisation de cookies susceptibles de réaliser des statistiques de visite. Cliquez ici pour plus d'informations