Bénéficiez des services de nos partenaires locaux soigneusement sélectionnés
pour vous accompagner dans votre parcours d'achat immobilier

Maison 100m2. terrain 2000m2. 10 min coulommiers

— Coulommiers 77120 —
265 000 €
97 m² / 2 000 m²
4 pièces
parkingbalcon/terrassejardin

Nos partenaires locaux
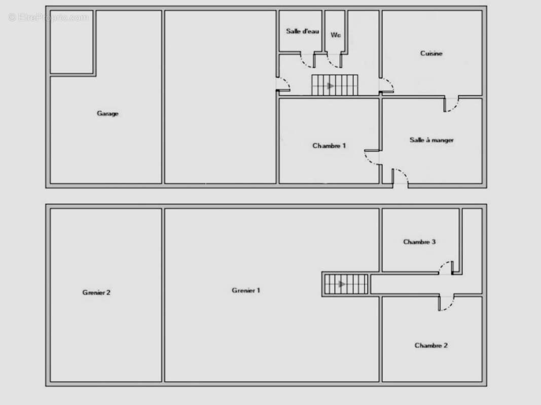
NOUVEAUTÉ de l'agence ! Éric VAUGEOIS vous propose cette authentique maison briarde de 100 m2 environ, idéalement située au calme à moins de 10 minutes de Coulommiers. Elle se compose Entrée - Séjour lumineux - Cuisine aménagée et équipée - Véranda - Chambre - Salle d’eau - WC séparé, Étage : Dégagement - 2 Chambres - 2 Greniers aménageables de 70 et 46 m2 environ. Grange attenante servant actuellement de Garage, Buanderie et Cave. Au fond du jardin : Garage et Abris.
Équipements : Poêle à bois. Assainissement individuel. Chauffage central par chaudière fuel avec production d'eau chaude.
Extérieurs : Superbe terrain de 2000 m2 environ plat, clos, au calme et sans vis-à-vis. Puits. Taxe foncière de 910 E/an. A vister sans tarder !

(Nombreuses autres photos complémentaires directement sur le site de l'agence) ------------------------------ Envie de changer de vie professionelle, nous recrutons des agents débutants ou confirmés sur tout le secteur. Contactez nous directement pour saisir cette belle opportunité
Voir plus

Honoraires à la charge du vendeur.
Barème des honoraires
DPE
A
B
C
D
E
F
G
GES
A
B
C
D
E
F
G

Prêt immobilier

Vous souhaitez connaître votre capacité d’emprunt et trouver le meilleur crédit immobilier ?
Réaliser une simulation gratuite

Maison à COULOMMIERS
Maison à COULOMMIERS
Maison à COULOMMIERS
Maison à COULOMMIERS
Maison à COULOMMIERS
Maison à COULOMMIERS
Maison à COULOMMIERS
Maison à COULOMMIERS
Maison à COULOMMIERS
Maison à COULOMMIERS
Maison à COULOMMIERS
Maison à COULOMMIERS
Maison à COULOMMIERS
Maison à COULOMMIERS
Maison à COULOMMIERS
Maison à COULOMMIERS
Maison à COULOMMIERS
Maison à COULOMMIERS
Maison à COULOMMIERS
Maison à COULOMMIERS
Maison à COULOMMIERS
Maison à COULOMMIERS
Maison à COULOMMIERS
Maison à COULOMMIERS
Maison à COULOMMIERS
Maison à COULOMMIERS
Maison à COULOMMIERS
Maison à COULOMMIERS
Maison à COULOMMIERS
Maison à COULOMMIERS
Maison à COULOMMIERS
Maison à COULOMMIERS
Maison à COULOMMIERS
Maison à COULOMMIERS
Maison à COULOMMIERS
Maison à COULOMMIERS
Maison à COULOMMIERS
Maison à COULOMMIERS
Maison à COULOMMIERS
Maison à COULOMMIERS
Maison à COULOMMIERS
Maison à COULOMMIERS
Maison à COULOMMIERS
Maison à COULOMMIERS
Maison à COULOMMIERS
Maison à COULOMMIERS
Maison à COULOMMIERS
Maison à COULOMMIERS
Maison à COULOMMIERS
Maison à COULOMMIERS
Maison à COULOMMIERS
Maison à COULOMMIERS
Maison à COULOMMIERS
Maison à COULOMMIERS
Maison à COULOMMIERS
Maison à COULOMMIERS
Ce site est protégé par reCAPTCHA la Politique de confidentialité et les Conditions d’utilisation de Google s’appliquent.
Obtenir un prêt immobilier au meilleur taux ?

En poursuivant votre navigation sans modifier vos paramètres, vous acceptez l'utilisation de cookies susceptibles de réaliser des statistiques de visite. Cliquez ici pour plus d'informations