Bénéficiez des services de nos partenaires locaux soigneusement sélectionnés
pour vous accompagner dans votre parcours d'achat immobilier

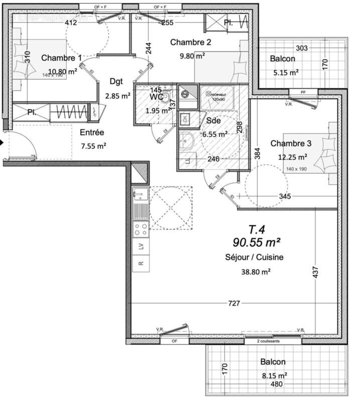
Appartement 90m² à perros-guirec

— Perros-Guirec 22700 —
446 000 €
91 m²
4 pièces
parkingbalcon/terrasseascenseur

Nos partenaires locaux
MON BIEN A LA MER, spécialiste de l'immobilier neuf sur les côtes bretonnes, vous présente :

Petite résidence de standing en cours de finition sur le Port de Perros Guirec.
Tous commerces à pied, en retrait de la rue, livrée printemps-été 2026.
Frais de notaire réduits.

T4 avec double terrasse / Expo Sud, vue Mer comprenant :
Spacieux Séjour de 39m2, 3 chambres, wc séparés, salle d'eau douche italienne, placards, cuisine.
BOX inclus.

Prestations standing : Parquet dans les chambres, carrelage 60*60 et faïence, wc suspendus, volets roulants électriques, receveur douche extra-plat, chaudière gaz individuelle, logement connecté, placards aménagés, baies vitrées alu coulissantes.

Nous Consulter

Honoraires à la charge du vendeur. Dans une copropriété de 22 lots. Aucune procédure n'est en cours. Non soumis au DPE. Les informations sur les risques auxquels ce bien est exposé sont disponibles sur le site Géorisques : georisques.gouv.fr.

Votre conseiller MON BIEN A LA MER : Gérant - .fr MON BIEN A LA MER
Carte T CPI 22[Coordonnées masquées]25 040
RCP ACM IARD B1 7025278
Voir plus

Référence: VA6095-BIENALAMER
Bien en copropriété. Nombre de lots : 22.
Honoraires à la charge du vendeur.
Barème des honoraires

Prêt immobilier

Vous souhaitez connaître votre capacité d’emprunt et trouver le meilleur crédit immobilier ?
Réaliser une simulation gratuite

Appartement à PERROS-GUIREC
Appartement à PERROS-GUIREC
Appartement à PERROS-GUIREC
Appartement à PERROS-GUIREC
Appartement à PERROS-GUIREC
Appartement à PERROS-GUIREC
Appartement à PERROS-GUIREC
Appartement à PERROS-GUIREC
Appartement à PERROS-GUIREC
Ce site est protégé par reCAPTCHA la Politique de confidentialité et les Conditions d’utilisation de Google s’appliquent.
Obtenir un prêt immobilier au meilleur taux ?

En poursuivant votre navigation sans modifier vos paramètres, vous acceptez l'utilisation de cookies susceptibles de réaliser des statistiques de visite. Cliquez ici pour plus d'informations