Appartement 80m² à pordic

— Pordic 22590 —
291 900 €
81 m²
4 pièces
balcon/terrasseascenseur

L'agence 'MON BIEN A LA MER', spécialiste de l'immobilier neuf sur les côtes Bretonnes, vous présente :

Coeur de ville : nouvelle résidence de standing en construction à 100m de la Place du Général de Gaulle, :
Commerces et bus à pied, plage de BINIC 5 min en voiture, gare TGV ST BRIEUC 12 min en voiture.

Résidence RE2020 organisée en 4 petits îlots avec jardin intérieur, parking sous sol, sécurisée.
Chauffage par pompe à chaleur, parquet stratifié berry alloc, volets roulants électriques, douches à l'italienne, local vélo. Appartements entièrement finis et équipés (sauf cuisine).

Livraison 4è trimestre 2026, travaux en cours, visitable.
Ascenseur. Frais de notaire réduits.

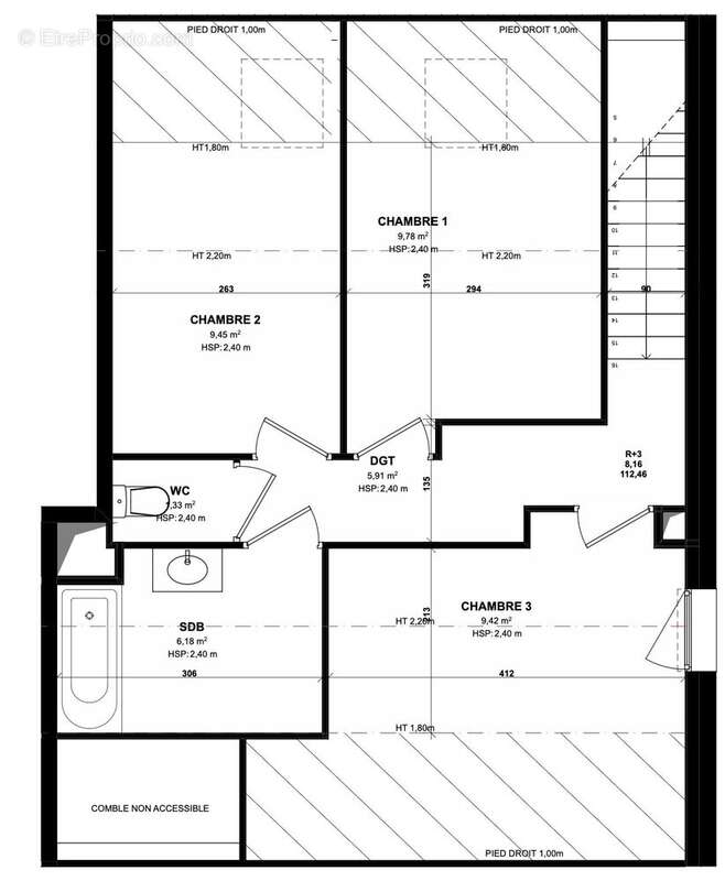
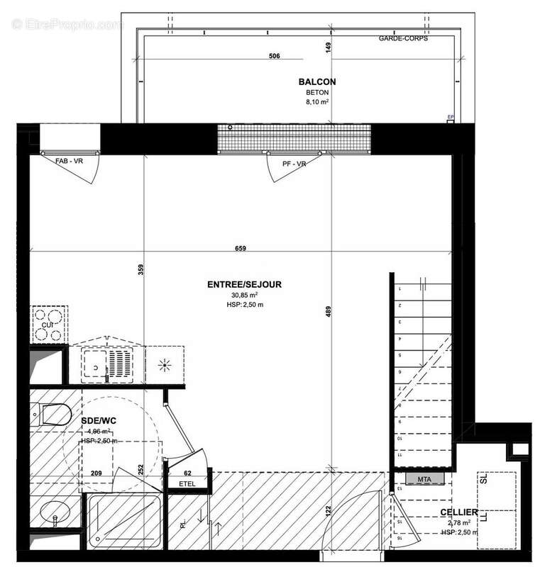
Aux 2è et 3è (derniers) étages, ce beau duplex T4 de 80,66m2 carrez comprend :
- Séjour 31m2, salle d'eau douche à l'italienne, cellier , placards, wc.
- à l'étage : 3 chambres, salle de bains, wc séparés
- terrasse côté cour 8m2
- parking en sous sol inclus.

Nous Consulter.

Honoraires à la charge du vendeur. Non soumis au DPE. Les informations sur les risques auxquels ce bien est exposé sont disponibles sur le site Géorisques : georisques.gouv.fr.

Votre conseiller MON BIEN A LA MER : Gérant - .fr MON BIEN A LA MER
Carte T CPI 22[Coordonnées masquées]25 040
RCP ACM IARD B1 7025278
Voir plus

Référence: VA6100-BIENALAMER
Honoraires à la charge du vendeur.
Barème des honoraires

Prêt immobilier

Vous souhaitez connaître votre capacité d’emprunt et trouver le meilleur crédit immobilier ?
Réaliser une simulation gratuite

Appartement à PORDIC
Appartement à PORDIC
Appartement à PORDIC
Appartement à PORDIC
Appartement à PORDIC
Appartement à PORDIC
Appartement à PORDIC
Appartement à PORDIC
Appartement à PORDIC
Ce site est protégé par reCAPTCHA la Politique de confidentialité et les Conditions d’utilisation de Google s’appliquent.
Obtenir un prêt immobilier au meilleur taux ?

En poursuivant votre navigation sans modifier vos paramètres, vous acceptez l'utilisation de cookies susceptibles de réaliser des statistiques de visite. Cliquez ici pour plus d'informations