Appartement 37m² à pordic

— Pordic 22590 —
175 900 €
37 m²
2 pièces
parkingbalcon/terrasseascenseur

L'agence 'MON BIEN A LA MER', spécialiste de l'immobilier neuf sur les côtes Bretonnes, vous présente :

Coeur de ville : nouvelle résidence de standing en construction à 100m de la Place du Général de Gaulle, :
Commerces et bus à pied, plage de BINIC 5 min en voiture, gare TGV ST BRIEUC 12 min en voiture.

Résidence RE2020 organisée en 4 petits îlots avec jardin intérieur, parking sous sol, sécurisée.
Chauffage par pompe à chaleur, parquet stratifié berry alloc, volets roulants électriques, douches à l'italienne, local vélo. Appartements entièrement finis et équipés (sauf cuisine).

Livraison 4è trimestre 2026, travaux en cours, visitable.
Ascenseur. Frais de notaire réduits.

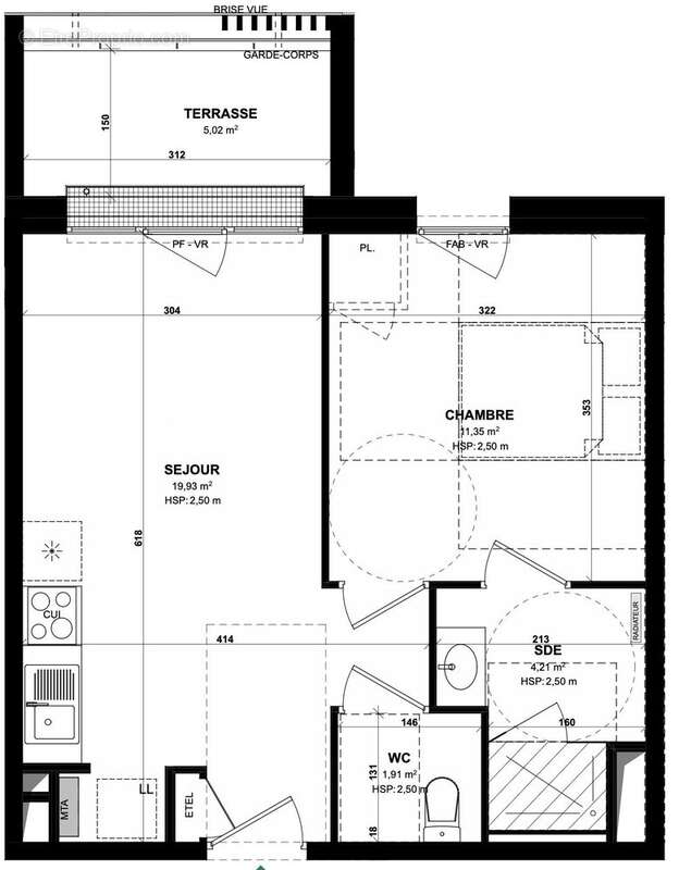
Petit 2T fonctionnel côté cour de 37,4m2 comprenant :
- séjour 20m2 donnant sur balcon 5m2,
- Chambre 11,35m2,
- Salle d'eau douche à l'italienne, wc séparés
- Parking inclus.

Nous Consulter.

Honoraires à la charge du vendeur. Non soumis au DPE. Les informations sur les risques auxquels ce bien est exposé sont disponibles sur le site Géorisques : georisques.gouv.fr.

Votre conseiller MON BIEN A LA MER : Gérant - .fr MON BIEN A LA MER
Carte T CPI 22[Coordonnées masquées]25 040
RCP ACM IARD B1 7025278
Voir plus

Référence: VA6105-BIENALAMER
Honoraires à la charge du vendeur.
Barème des honoraires

Prêt immobilier

Vous souhaitez connaître votre capacité d’emprunt et trouver le meilleur crédit immobilier ?
Réaliser une simulation gratuite

Appartement à PORDIC
Appartement à PORDIC
Appartement à PORDIC
Appartement à PORDIC
Appartement à PORDIC
Appartement à PORDIC
Appartement à PORDIC
Appartement à PORDIC
Appartement à PORDIC
Ce site est protégé par reCAPTCHA la Politique de confidentialité et les Conditions d’utilisation de Google s’appliquent.
Obtenir un prêt immobilier au meilleur taux ?

En poursuivant votre navigation sans modifier vos paramètres, vous acceptez l'utilisation de cookies susceptibles de réaliser des statistiques de visite. Cliquez ici pour plus d'informations