Bénéficiez des services de nos partenaires locaux soigneusement sélectionnés
pour vous accompagner dans votre parcours d'achat immobilier

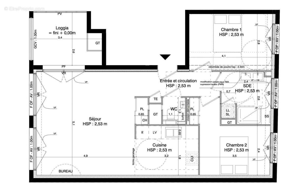
Appartement 68m² à lorient

— Lorient 56100 —
422 000 €
68 m²
3 pièces
parkingbalcon/terrasseascenseur

Nos partenaires locaux
L'agence 'MON BIEN A LA MER', spécialiste de l'immobilier neuf sur les côtes Bretonnes, vous présente :

Rare : une rénovation d'un bâtiment historique de grand standing. Pierre de taille, grandes surfaces vitrées, Jardin paysager. Livrée et habitable de suite.

En plein centre ville, à 5-10 min à pied du Port, de la Gare, du Centre des Congrès, des Galeries Lafayette et tous commerces.

Spacieux T3 de 68m2 sur cour, au calme, comprenant :
- séjour 33m2 et loggia exposés sud ouest
- deux chambres 11,5-10,8m2,
- salle d'eau douche à l'italienne, wc séparés, entrée
- parking et cave inclus.

Nous Consulter.

Honoraires à la charge du vendeur. Classe énergie C, Classe climat C Montant estimé des dépenses annuelles d'énergie pour un usage standard : entre 520.00 € et 760.00 € sur les années 2021, 2022 et 2023 (abonnements compris). Les informations sur les risques auxquels ce bien est exposé sont disponibles sur le site Géorisques : georisques.gouv.fr.

Votre conseiller MON BIEN A LA MER : Gérant - .fr MON BIEN A LA MER
Carte T CPI 22[Coordonnées masquées]25 040
RCP ACM IARD B1 7025278
Voir plus

Référence: VA6194-BIENALAMER
Honoraires à la charge du vendeur.
Barème des honoraires
DPE
A
B
C
D
E
F
G
GES
A
B
C
D
E
F
G

Prêt immobilier

Vous souhaitez connaître votre capacité d’emprunt et trouver le meilleur crédit immobilier ?
Réaliser une simulation gratuite

Appartement à LORIENT
Appartement à LORIENT
Appartement à LORIENT
Appartement à LORIENT
Appartement à LORIENT
Appartement à LORIENT
Appartement à LORIENT
Appartement à LORIENT
Appartement à LORIENT
Ce site est protégé par reCAPTCHA la Politique de confidentialité et les Conditions d’utilisation de Google s’appliquent.
Obtenir un prêt immobilier au meilleur taux ?

En poursuivant votre navigation sans modifier vos paramètres, vous acceptez l'utilisation de cookies susceptibles de réaliser des statistiques de visite. Cliquez ici pour plus d'informations