Terrain constructible montech

— Montech 82700 —
67 000 €
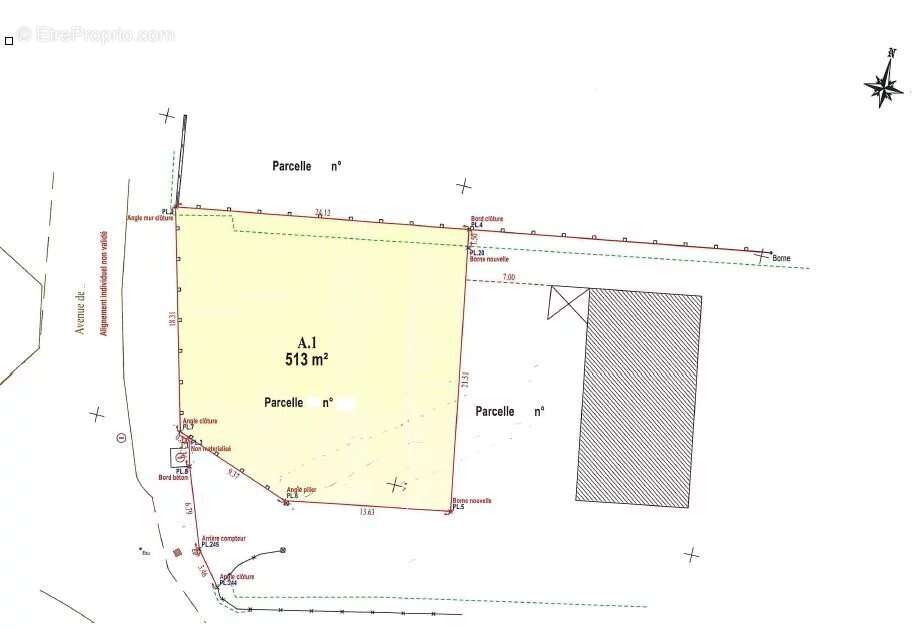
513 m²

À vendre - Terrain à bâtir 513 m² - MONTECH (82700)

À seulement 900 mètres du centre-ville de Montech et de toutes ses commodités, découvrez ce terrain à bâtir de 513 m², idéalement situé dans un environnement calme et résidentiel.

Le terrain, non viabilisé mais raccordable au tout-à-l’égout, se trouve en zone UC du PLU.

Situation géographique privilégiée :
15 minutes de Montauban
30 minutes de Toulouse

Pour plus d’informations ou organiser une visite, contactez-nous sans attendre !
Voir plus

Référence: 86126876
Barème des honoraires

Prêt immobilier

Vous souhaitez connaître votre capacité d’emprunt et trouver le meilleur crédit immobilier ?
Réaliser une simulation gratuite

Terrain à MONTECH
Terrain à MONTECH
Ce site est protégé par reCAPTCHA la Politique de confidentialité et les Conditions d’utilisation de Google s’appliquent.
Obtenir un prêt immobilier au meilleur taux ?

En poursuivant votre navigation sans modifier vos paramètres, vous acceptez l'utilisation de cookies susceptibles de réaliser des statistiques de visite. Cliquez ici pour plus d'informations