Bénéficiez des services de nos partenaires locaux soigneusement sélectionnés
pour vous accompagner dans votre parcours d'achat immobilier

3 lots a vendre - carré d'or - banane - 100 mètres croisette

— Cannes 06400 —
371 000 €
37 m²
3 pièces

Nos partenaires locaux
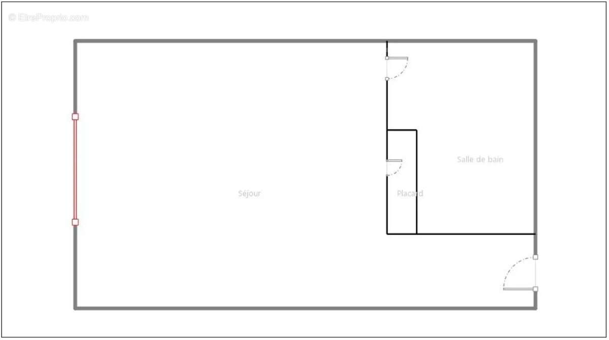
Nous proposons 3 studettes situées dans le quartier prisé du Carrée d'Or, au coeur de la Banane, dans une célèbre résidence de renommée.
A seulement 100 mètres à pied de la célèbre Croisette et à 500 mètres du Palais.
Emplacement exceptionnel, au sein d’un secteur vivant et recherché.

Elles sont situées au demi-palier (sans ascenseur) et sont desservies par un couloir commun qui n’ouvre sur aucun autre bien, offrant ainsi une tranquillité et une exclusivité particulièrement rares.
Le 3ème lot d'une surface de 15,60 m2 est à rénover.

Idéal pour un investisseur : Très bon rendement locatif (env. 7% - plus d'informations sur demande).

Les plus :
- Emplacement premium où tout se fait à pied : plages, boutiques de luxe, restaurants, animations
- 100m Croisette
- 500m Palais des festivals
- Climatisation réversible dans chaque lot

D'avantage de photos sur demande.
Voir plus

Référence: W306SC
DPE
A
B
C
D
E
F
G
GES
A
B
C
D
E
F
G

Prêt immobilier

Vous souhaitez connaître votre capacité d’emprunt et trouver le meilleur crédit immobilier ?
Réaliser une simulation gratuite

Appartement à CANNES
Appartement à CANNES
Appartement à CANNES
Appartement à CANNES
Appartement à CANNES
Appartement à CANNES
Appartement à CANNES
Appartement à CANNES
Ce site est protégé par reCAPTCHA la Politique de confidentialité et les Conditions d’utilisation de Google s’appliquent.
Obtenir un prêt immobilier au meilleur taux ?

En poursuivant votre navigation sans modifier vos paramètres, vous acceptez l'utilisation de cookies susceptibles de réaliser des statistiques de visite. Cliquez ici pour plus d'informations