Bénéficiez des services de nos partenaires locaux soigneusement sélectionnés
pour vous accompagner dans votre parcours d'achat immobilier

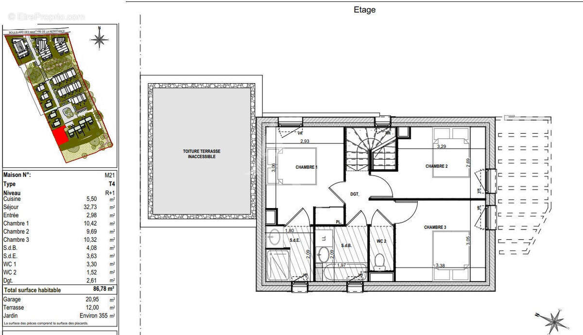
A vendre maison t4 de 86,78m² avec garage disponible de suite

— Coueron 44220 —
350 000 €
87 m²
4 pièces
parkingbalcon/terrasse

Nos partenaires locaux
Situé à Couëron, à seulement 20 minutes de Nantes, ce programme immobilier neuf bénéficie d'un emplacement privilégié, facilement accessible grâce aux transports en commun (bus, gare TER) et aux nombreuses pistes cyclables. La proximité de la Loire, du lac de Beaulieu et de la Tour à plomb offre un cadre naturel agréable, idéal pour les activités de plein air tout en restant proche des commerces et services. Cette maison T4 offre une surface habitable de 86,78m². Elle comprend au RDC un séjour cuisine d'environ 38m² ouvrant sur une terrasse de 12m² , un WC. A l'étage trois chambres, une salle de bains, une salle d'eau et un second WC. Le jardin d'environ 355m² est engazonné, et une place PMR est aménagée à l'avant du garage attenant à la maison La parcelle est entièrement clôturée. Le logement présente une performance énergétique en classe B, avec une estimation des dépenses annuelles comprise entre 660 euros et 950 euros. Label Energie RT2012 Prix: 350 000 euros TTC - Frais de notaire réduit à 2,5% Prix direct promoteur REF: 34928BalzM21 "Les informations sur les risques auxquels ce bien est exposé sont disponibles sur le site Géorisques : www.georisques.gouv.fr" Copropriété de 61 lots - dont 60 lots habitation.(Pas de procédure en cours).
Voir plus

Bien en copropriété. Nombre de lots : 61.
Honoraires à la charge du vendeur.
Barème des honoraires

Prêt immobilier

Vous souhaitez connaître votre capacité d’emprunt et trouver le meilleur crédit immobilier ?
Réaliser une simulation gratuite

Appartement à COUERON
Appartement à COUERON
Appartement à COUERON
Appartement à COUERON
Appartement à COUERON
Appartement à COUERON
Appartement à COUERON
Ce site est protégé par reCAPTCHA la Politique de confidentialité et les Conditions d’utilisation de Google s’appliquent.
Obtenir un prêt immobilier au meilleur taux ?

En poursuivant votre navigation sans modifier vos paramètres, vous acceptez l'utilisation de cookies susceptibles de réaliser des statistiques de visite. Cliquez ici pour plus d'informations