Pas de parking à Cornus pour le moment. Découvrez dès maintenant les parkings dans le département Aveyron.
Bénéficiez des services de nos partenaires locaux soigneusement sélectionnés
pour vous accompagner dans votre parcours d'achat immobilier

Vente bureaux 600m2 à proximité de la gare de l'est

— Paris-10e 75010 —
2 750 000 €
300 m²

Nos partenaires locaux
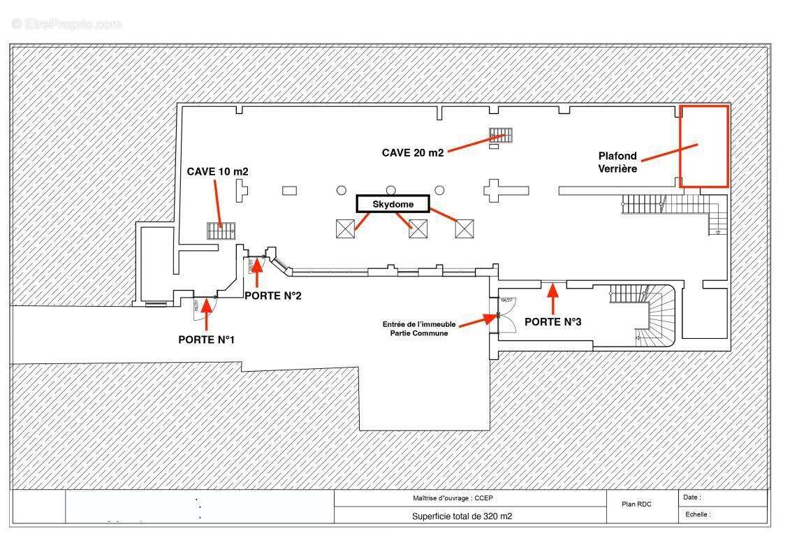
M° Strasbourg Saint-Denis, dans un immeuble de standing, à vendre un local commercial de 300 m².

CARACTERISTIQUES DE L'OFFRE 

Façade, toit et plancher rénové

300m2 au RDC avec 3 accès indépendants

3 portes d'accès

Bureaux

Sanitaire

Cave

Possiblité d'acquéreur le 1e étage de 300m2 en sus

CONDITIONS FINANCIERES 

Prix vente : 2 750 000€ Net vendeur

Honoraires : 5% HT du prix de vente

Disponibilité : Immédiate

 
Voir plus

Référence: 10321407

Prêt immobilier

Vous souhaitez connaître votre capacité d’emprunt et trouver le meilleur crédit immobilier ?
Réaliser une simulation gratuite

Commerce à PARIS-10E
Commerce à PARIS-10E
Commerce à PARIS-10E
Commerce à PARIS-10E
Commerce à PARIS-10E
Ce site est protégé par reCAPTCHA la Politique de confidentialité et les Conditions d’utilisation de Google s’appliquent.
Obtenir un prêt immobilier au meilleur taux ?

En poursuivant votre navigation sans modifier vos paramètres, vous acceptez l'utilisation de cookies susceptibles de réaliser des statistiques de visite. Cliquez ici pour plus d'informations