Pas de commerce à Plaimpied-Givaudins pour le moment. Découvrez dès maintenant les commerces dans le département Cher.

Bâtiment indépendant mixte à vendre avec espaces extérieurs

— Clichy 92110 —
1 670 000 €
274 m²

M° Mairie de Clichy, à proximité du siège de l'Oréal, dans un immeuble neuf, à vendre un bâtiment indépendant de 274m² avec cour et jardin privatif .

CARACTERISTIQUES DE L'OFFRE 

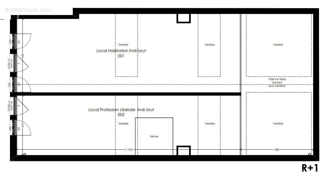
Bâtiment indépendant sur cour comprenant :

Un local professionnel de 108m² et une habitation de 166m².

Divisé sur 3 niveaux (R-1 à R+1)

Jardin privatif de 23m²

Jouissance d'une cour privative de 50 m² 

Un box de stationnement en accès direct via le sous-sol

Accès PMR

CONDITIONS FINANCIERES 

Prix de vente : 1 670 000€ Net vendeur

Honoraires de commercialisation : 4,70% TTC du prix net vendeur soit 78 400€ TTC

Disponibilité : Immédiate

 
Voir plus

Référence: 10319385

Prêt immobilier

Vous souhaitez connaître votre capacité d’emprunt et trouver le meilleur crédit immobilier ?
Réaliser une simulation gratuite

Commerce à CLICHY
Commerce à CLICHY
Commerce à CLICHY
Commerce à CLICHY
Commerce à CLICHY
Commerce à CLICHY
Commerce à CLICHY
Commerce à CLICHY
Commerce à CLICHY
Ce site est protégé par reCAPTCHA la Politique de confidentialité et les Conditions d’utilisation de Google s’appliquent.
Obtenir un prêt immobilier au meilleur taux ?

En poursuivant votre navigation sans modifier vos paramètres, vous acceptez l'utilisation de cookies susceptibles de réaliser des statistiques de visite. Cliquez ici pour plus d'informations