Bénéficiez des services de nos partenaires locaux soigneusement sélectionnés
pour vous accompagner dans votre parcours d'achat immobilier

A saisir, prix très attractif : a vendre 357 m² au pont de st cloud

— Saint-Cloud 92210 —
580 000 €
357 m²

Nos partenaires locaux
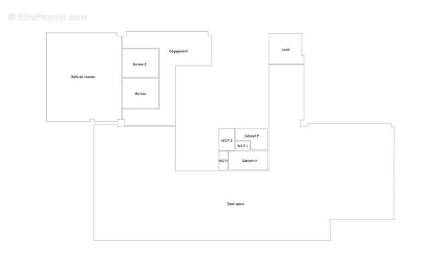
A VENDRE, une surface de bureaux en bon état de 356,70m² au 2ème étage du Bat B, avec accès sur jardin

CARACTERISTIQUES DE L'OFFRE 

Bureaux cloisonnés et open space sur jardin accessible par une porte fenêtre

Doubles sanitaires

1 grande salle de réunion et 2 phone box

Locaux sécurisés

Conciergerie

4 places de parking en sus du Prix de Vente

Archives disponibles en sus.

CONDITIONS FINANCIERES 

Prix de Vente bureaux Net Vendeur : 580 000 € HD et Hors honoraires

Prix de Vente  parkings net vendeur   : 40 000  € HD et HH

Honoraires en sus  à la charge de l'acquéreur : 5% HT  du P.V net vendeur

Disponibilité : Immédiate

Possibilité d'acquérir un lot mitoyen communiquant de 633 m²
Voir plus

Référence: 10316212

Prêt immobilier

Vous souhaitez connaître votre capacité d’emprunt et trouver le meilleur crédit immobilier ?
Réaliser une simulation gratuite

Commerce à SAINT-CLOUD
Commerce à SAINT-CLOUD
Commerce à SAINT-CLOUD
Commerce à SAINT-CLOUD
Commerce à SAINT-CLOUD
Commerce à SAINT-CLOUD
Commerce à SAINT-CLOUD
Commerce à SAINT-CLOUD
Ce site est protégé par reCAPTCHA la Politique de confidentialité et les Conditions d’utilisation de Google s’appliquent.
Obtenir un prêt immobilier au meilleur taux ?

En poursuivant votre navigation sans modifier vos paramètres, vous acceptez l'utilisation de cookies susceptibles de réaliser des statistiques de visite. Cliquez ici pour plus d'informations