Bénéficiez des services de nos partenaires locaux soigneusement sélectionnés
pour vous accompagner dans votre parcours d'achat immobilier

Plateau de bureaux à vendre 2ème étage au coeur de levallois

— Levallois-Perret 92300 —
1 400 000 €
198 m²

Nos partenaires locaux
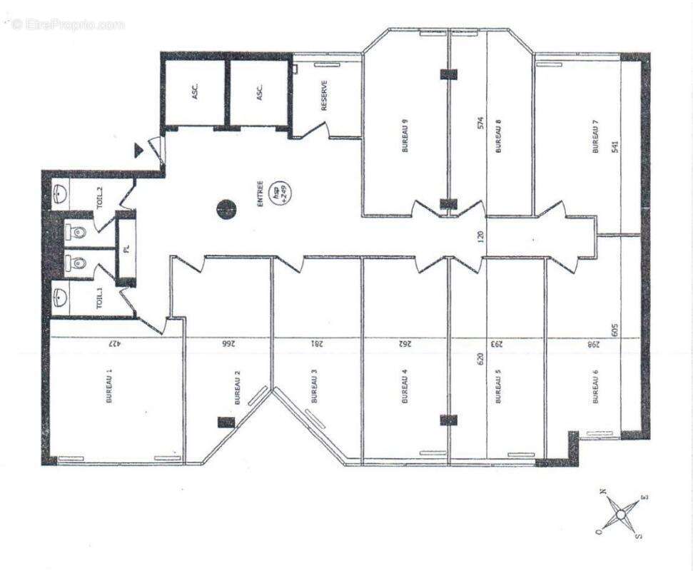
A proximité du Pont de Levallois et de la Gare SNCF (L) , dans un immeuble tertiaire, à VENDRE une surface de bureaux de 198 m² au 2ème étage

  

CARACTERISTIQUES DE L'OFFRE 

Surface privative carrez : 198 m²

Accès sécurisé- Interphone

Hall d'accueil

Ascenseur

Surface configuée en 9 bureaux

Plateaux lumineux et traversant

Cloisonnement amovible

Baie de brassage-câblage RJ45

7 Parkings en sus du PV . 

CONDITIONS FINANCIERES

 

Prix de vente net vendeur : 1 400 000 € HD hors parkings

Parkings : 25 K€/unité

Honoraire  : 5% HT du prix net vendeur HD à la charge de l'acquéreur

Disponibilité : Immédiate

 
Voir plus

Référence: 10318132

Prêt immobilier

Vous souhaitez connaître votre capacité d’emprunt et trouver le meilleur crédit immobilier ?
Réaliser une simulation gratuite

Commerce à LEVALLOIS-PERRET
Commerce à LEVALLOIS-PERRET
Commerce à LEVALLOIS-PERRET
Commerce à LEVALLOIS-PERRET
Commerce à LEVALLOIS-PERRET
Commerce à LEVALLOIS-PERRET
Commerce à LEVALLOIS-PERRET
Commerce à LEVALLOIS-PERRET
Ce site est protégé par reCAPTCHA la Politique de confidentialité et les Conditions d’utilisation de Google s’appliquent.
Obtenir un prêt immobilier au meilleur taux ?

En poursuivant votre navigation sans modifier vos paramètres, vous acceptez l'utilisation de cookies susceptibles de réaliser des statistiques de visite. Cliquez ici pour plus d'informations