Immeuble occupé indépendant à vendre de 260m² à suresnes

— Suresnes 92150 —
1 700 000 €
260 m²

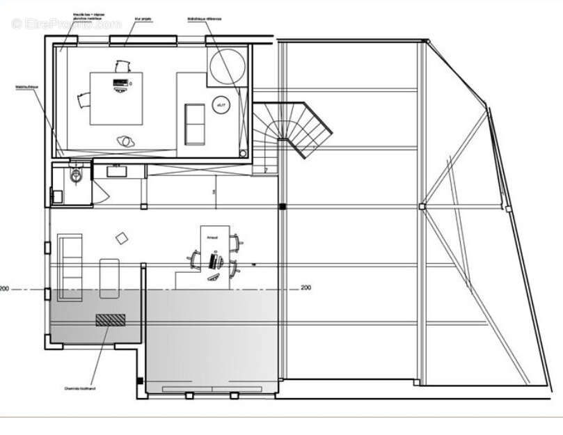
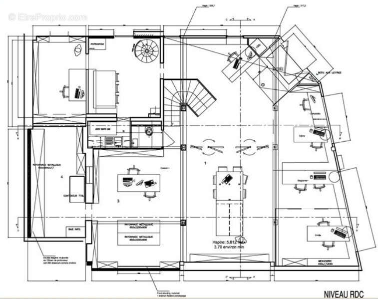
A vendre, bâtiment indépendant de 260 m² à Suresnes entièrement reconçu par un architecte

CARACTERISTIQUES DE L'OFFRE

Bail 9 ans ferme depuis le 1 er mars 2024

Loyer 90 000€ / an hc ht

Accès sécurisé avec alarme et vidéosurveillance

Espace d'accueil

Locaux rénovés

Climatisation

Salles de réunion

Bureaux cloisonnés et espaces ouverts

Double exposition

Hauteur sous plafond de 5,50 m

Cuisine

Chauffage au sol

Archives

Aire de livraison avec entrée palette

CONDITIONS FINANCIERES

Prix de Vente : 1 700 000 € HT/HD/HH

Honoraires en sus à la charge de l'acquéreur : 5% HT HD du prix de vente

Disponibilité : immédiate 
Voir plus

Référence: 10308689

Prêt immobilier

Vous souhaitez connaître votre capacité d’emprunt et trouver le meilleur crédit immobilier ?
Réaliser une simulation gratuite

Commerce à SURESNES
Commerce à SURESNES
Commerce à SURESNES
Commerce à SURESNES
Commerce à SURESNES
Commerce à SURESNES
Commerce à SURESNES
Commerce à SURESNES
Commerce à SURESNES
Ce site est protégé par reCAPTCHA la Politique de confidentialité et les Conditions d’utilisation de Google s’appliquent.
Obtenir un prêt immobilier au meilleur taux ?

En poursuivant votre navigation sans modifier vos paramètres, vous acceptez l'utilisation de cookies susceptibles de réaliser des statistiques de visite. Cliquez ici pour plus d'informations