Bénéficiez des services de nos partenaires locaux soigneusement sélectionnés
pour vous accompagner dans votre parcours d'achat immobilier

Voir tous les partenaires locaux

Bureaux au pied de l'arc de triomphe

— Paris-16e 75016 —
1 650 000 €
138 m²

Nos partenaires locaux
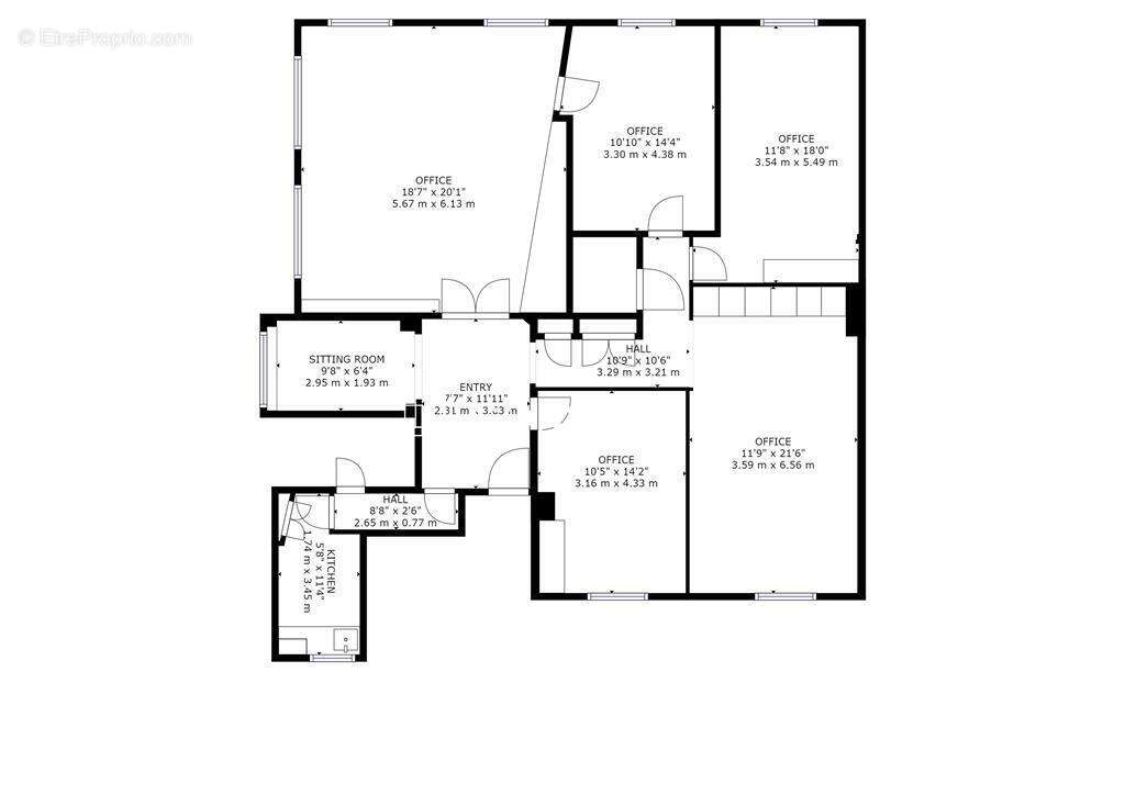
EXCLUSIVITE! Au pied de l'Arc de Triomphe, à vendre au 4ème étage avec ascenseur d'un immeuble Pierre de Taille, une surface de bureaux de 138m² (132+6m² de courette "couverte")

CARACTERISTIQUES DE L'OFFRE 

1 entrée/accueil

5 bureaux dont 1 grand

1 cuisine

Bloc sanitaire avec lave-mains

Au pied de l'Arc de Triomphe 

Bel immeuble bien entretenu

Ascenseur

Accès sécurisé

Lien de la visite virtuelle : https://shoootin.com/scan/5fb29f27bb956e6979077130

CONDITIONS FINANCIERES 

Prix net vendeur : 1 650 000 €

Honoraires à la charge de l'aquéreur : 5% HT du prix net vendeur HD
Voir plus

Référence: 10316176

Prêt immobilier

Vous souhaitez connaître votre capacité d’emprunt et trouver le meilleur crédit immobilier ?
Réaliser une simulation gratuite

Commerce à PARIS-16E
Commerce à PARIS-16E
Commerce à PARIS-16E
Commerce à PARIS-16E
Commerce à PARIS-16E
Commerce à PARIS-16E
Commerce à PARIS-16E
Commerce à PARIS-16E
Ce site est protégé par reCAPTCHA la Politique de confidentialité et les Conditions d’utilisation de Google s’appliquent.
Obtenir un prêt immobilier au meilleur taux ?

En poursuivant votre navigation sans modifier vos paramètres, vous acceptez l'utilisation de cookies susceptibles de réaliser des statistiques de visite. Cliquez ici pour plus d'informations