Bénéficiez des services de nos partenaires locaux soigneusement sélectionnés
pour vous accompagner dans votre parcours d'achat immobilier

Appartement 18m² à villeurbanne

— Villeurbanne 69100 —
54 500 €
18 m²
1 pièce

Nos partenaires locaux
69100 VILLEURBANNE CHARPENNES VENTE STUDIO MEUBLE 18m2 VENDU LOUE FISCALITE LMNP LMP 54 500 €
STUDIO MEUBLE VENDU LOUE, UNIQUEMENT POUR INVESTISSEUR, FISCALITÉ LMNP OU LMP
Loyer annuel : 3896 € TTC
Reprise de bail commercial en cours, renouvellement en Avril 2023 pour 11 ans
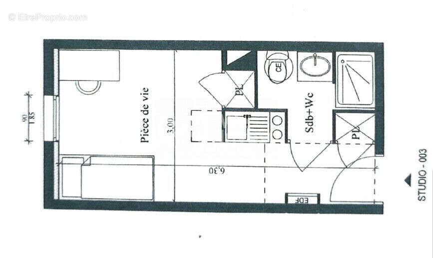
Dans une résidence de services para hôtelière récente, studio meublé d'environ 18 m2, en bon état
Pièce principale avec coin cuisine aménagée, salle d'eau et wc
Chauffage : individuel radiateur électrique
Eau chaude sanitaire : individuel cumulus électrique
Lots annexes : /
Equipements logement :
Equipements / services copropriété : Internet haut débit illimité, local machines à laver, salle petit déjeuner, salle fitness, local à vélo, parking payant
Les avantages :
– Fiscalité LMNP très avantageuse (BIC avec amortissement et déduction des charges)
– Loyer garantie par bail commercial
– Prix attractif
– Rentabilité élevée
– Gestion de la location déléguée à exploitant professionnel
Préparer votre retraite, Protéger votre famille, Créer du patrimoine
Nous sommes à votre disposition avec nos partenaires avocat fiscaliste, expert-comptable et banquiers pour étudier la meilleure solution pour vos investissements.
Montant moyen annuel des charges courantes: 165 €/an
Taxe Foncière : 361 €/an
Soumis au statut de la copropriété: total xxx lots dont xx lots habitation
Absence de procédure de redressement sur la copropriété
DPE: D
GES : B
Montant estimé des dépenses annuelles d'énergie pour un usage standard : entre 320 € et 470 € / an
Date de référence des prix de l'énergie utilisés pour établir cette estimation : 01 01 2021
Honoraires charge Vendeur
Image non contractuelle
Les informations sur les risques auxquels ce bien est exposé sont disponibles sur le site Géorisques : www.georisques.gouv.fr
Ce bien est à vendre en vente interactive réalisée par WINIMMO ENCHERES. Aucuns frais supplémentaire n'est à prévoir ni pour l'acquéreur, ni pour le vendeur. La participation à la vente interactive est soumise à agrément préalable. Toutes les offres seront transmises au vendeur, lequel restera libre dans la sélection de l'offre à laquelle il entend donner suite. Une offre en ligne pendant la vente interactive ne constitue pas une offre ferme et définitive au sens de l'article 1114 du Code Civil, mais une simple intention d'achat. Le prix affiché correspond à un prix de première offre possible honoraires de négociation inclus, étant précisé que ledit prix n'étant pas forcément un prix auquel le vendeur souhaite vendre

Honoraires à la charge du vendeur. Dans une copropriété de 100 lots. Aucune procédure n'est en cours. Classe énergie C, Classe climat A Montant estimé des dépenses annuelles d'énergie pour un usage standard : entre 320.00 € et 470.00 € sur les années 2021, 2022 et 2023 (abonnements compris). Les informations sur les risques auxquels ce bien est exposé sont disponibles sur le site Géorisques : georisques.gouv.fr.

Votre conseiller DHG Conseil : Directeur d'Agence - Gilles Delarche
Voir plus

Référence: VA50039
Bien en copropriété. Nombre de lots : 100.
Honoraires à la charge du vendeur.
DPE
A
B
C
D
E
F
G
GES
A
B
C
D
E
F
G

Prêt immobilier

Vous souhaitez connaître votre capacité d’emprunt et trouver le meilleur crédit immobilier ?
Réaliser une simulation gratuite

Appartement à VILLEURBANNE
Appartement à VILLEURBANNE
Appartement à VILLEURBANNE
Appartement à VILLEURBANNE
Appartement à VILLEURBANNE
Ce site est protégé par reCAPTCHA la Politique de confidentialité et les Conditions d’utilisation de Google s’appliquent.
Obtenir un prêt immobilier au meilleur taux ?

En poursuivant votre navigation sans modifier vos paramètres, vous acceptez l'utilisation de cookies susceptibles de réaliser des statistiques de visite. Cliquez ici pour plus d'informations