Bénéficiez des services de nos partenaires locaux soigneusement sélectionnés
pour vous accompagner dans votre parcours d'achat immobilier

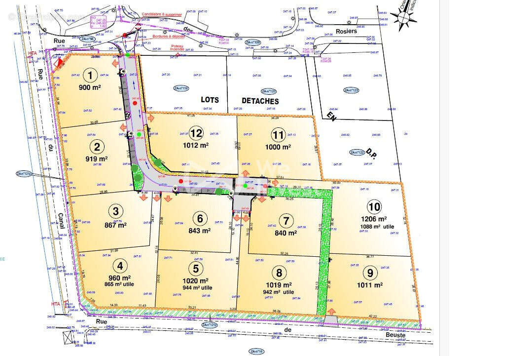
Terrain 840m² à baudreix

— Baudreix 64800 —
70 300 €
840 m²

Nos partenaires locaux
BAUDREIX - Nouveau lotissement ! Nous sommes ravis de vous présenter une opportunité unique d'acquérir l'un des 12 terrains viabilisés, idéalement situés pour la construction de votre future maison. Caractéristiques du lotissement : -Emplacement Privilégié : Niché dans un quartier résidentiel paisible, notre lotissement offre un cadre de vie idéal, à proximité des commodités locales, des écoles, de SAFRAN et des transports en commun. -Terrains Viabilisés : Chaque terrain est entièrement viabilisé, ce qui signifie que l'eau, l'électricité, la fibre et les égouts sont déjà disponibles. Vous pouvez ainsi commencer la construction de votre maison sans délai. -Accompagnement Personnalisé : Notre équipe est là pour vous guider à chaque étape du processus. De la sélection du terrain à la signature de l'acte de vente, nous sommes là pour vous offrir un soutien personnalisé et professionnel. Terrains de 840m² à 1206m² à partir de 70 300 € . Pour plus d'informations, contactez nous dés aujourd'hui pour planifier une visite du site ou pour discuter de vos projets de construction.

Honoraires à la charge du vendeur. Les informations sur les risques auxquels ce bien est exposé sont disponibles sur le site Géorisques : georisques.gouv.fr.
Voir plus

Référence: VT3511
Honoraires à la charge du vendeur.
Barème des honoraires

Prêt immobilier

Vous souhaitez connaître votre capacité d’emprunt et trouver le meilleur crédit immobilier ?
Réaliser une simulation gratuite

Terrain à BAUDREIX
Terrain à BAUDREIX
Terrain à BAUDREIX
Ce site est protégé par reCAPTCHA la Politique de confidentialité et les Conditions d’utilisation de Google s’appliquent.
Obtenir un prêt immobilier au meilleur taux ?

En poursuivant votre navigation sans modifier vos paramètres, vous acceptez l'utilisation de cookies susceptibles de réaliser des statistiques de visite. Cliquez ici pour plus d'informations