Terrain à bâtir 526m² - quartier pavillonnaire

— Corbeil-Essonnes 91100 —
170 000 €
526 m²
jardin

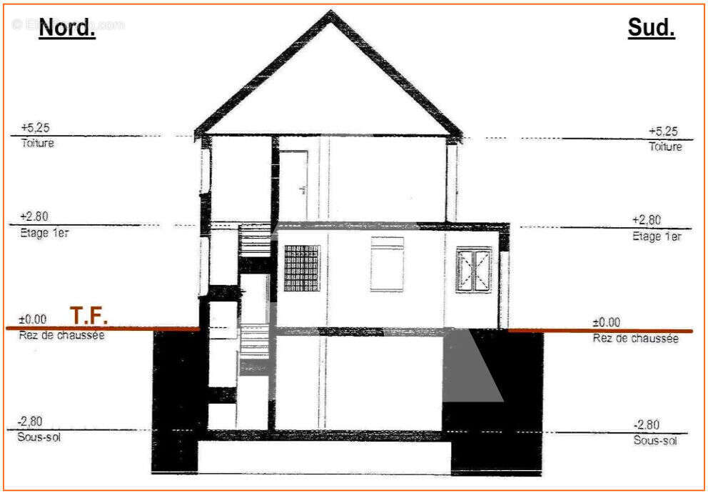
En EXCLUSIVITÉ dans votre agence Sixième Avenue, l'immobilier par M6 : Un terrain à bâtir de 526 m² en lot arrière, situé dans un quartier pavillonnaire calme et prisé. Constructible en zone UH2 du PLU pour une surface sol maximum de 103 m², R+1 plus combles, soit une superficie totale maximum d'environ 206 m²: Sous-sol possible également. Etude de sol G1.2 réalisée. Terrain libre de tout constructeur. Non viabilisé. Une belle opportunité pour concrétiser votre projet de construction !
Voir plus

Référence: 117
Honoraires à la charge du vendeur.
Barème des honoraires

Prêt immobilier

Vous souhaitez connaître votre capacité d’emprunt et trouver le meilleur crédit immobilier ?
Réaliser une simulation gratuite

Terrain à CORBEIL-ESSONNES
Terrain à CORBEIL-ESSONNES
Ce site est protégé par reCAPTCHA la Politique de confidentialité et les Conditions d’utilisation de Google s’appliquent.
Obtenir un prêt immobilier au meilleur taux ?

En poursuivant votre navigation sans modifier vos paramètres, vous acceptez l'utilisation de cookies susceptibles de réaliser des statistiques de visite. Cliquez ici pour plus d'informations