Bénéficiez des services de nos partenaires locaux soigneusement sélectionnés
pour vous accompagner dans votre parcours d'achat immobilier

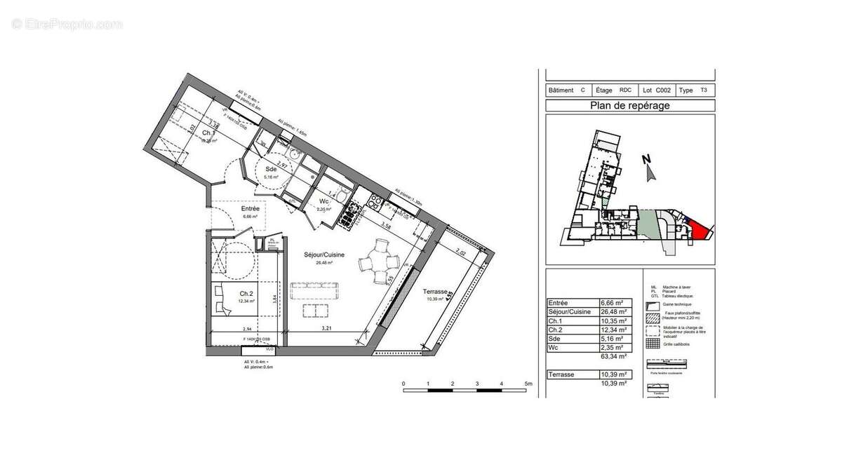
Appartement 3 pièces 63m² avec terrasse et parking

— Angers 49100 —
204 000 €
63 m²
3 pièces
parkingbalcon/terrasseascenseur

Nos partenaires locaux
Rare, immédiatement disponible, appartement neuf de 3 pièces avec terrasse et parking, proche des commerces, écoles du centre-ville. L'entrée dessert une belle pièce de vie, avec cuisine ouverte, agrémentée d'une terrasse exposée sud-est. Vous disposez également de 2 chambres et d'une salle d'eau avec toilettes séparées. Une place de parking sécurisée en sous-sol complète ce bien. Construction conforme à la norme RE2020 garantissant sobriété énergétique et confort d'été. Idéal 1er achat : bénéficiez de la TVA réduite à 5,5% et de frais de notaire réduits, prix : 204000€ avec TVA réduite à 5,5%, sous réserve d'éligibilité, ou 238032€ avec TVA 20%, pour toute information contactez David Piron tel O628 269 863, SAS REVO IMMO - plus d'informations sur www.revo.immo (réf. 4901051217). Agent commercial RSAC Angers 489 641 837 Bien soumis au statut juridique de la Copropriété. Nb de lots : 67. Pas de procédure en cours. Les informations sur les risques auxquels ce bien est exposé sont disponibles sur le site Géorisques : https://www.georisques.gouv.fr/. Surface CARREZ : 63.34 m²
Voir plus

Référence: 2619
Bien en copropriété. Nombre de lots : 67.
Honoraires à la charge du vendeur.
Barème des honoraires

Prêt immobilier

Vous souhaitez connaître votre capacité d’emprunt et trouver le meilleur crédit immobilier ?
Réaliser une simulation gratuite

Appartement à ANGERS
Appartement à ANGERS
Appartement à ANGERS
Ce site est protégé par reCAPTCHA la Politique de confidentialité et les Conditions d’utilisation de Google s’appliquent.
Obtenir un prêt immobilier au meilleur taux ?

En poursuivant votre navigation sans modifier vos paramètres, vous acceptez l'utilisation de cookies susceptibles de réaliser des statistiques de visite. Cliquez ici pour plus d'informations