Bénéficiez des services de nos partenaires locaux soigneusement sélectionnés
pour vous accompagner dans votre parcours d'achat immobilier

Maison prête à vivre 126 m2 garage, carport, terrain saint-barthélémy-lestra

— Saint-Barthelemy-Lestra 42110 —
169 000 €
126 m² / 200 m²
4 pièces
parkingjardin

Nos partenaires locaux
Maison mitoyenne de 126 m2 avec potentiel d’agrandissement
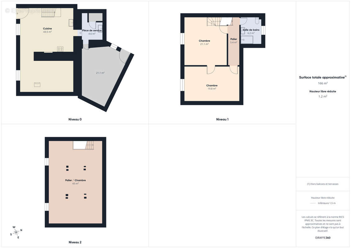
Située dans un environnement calme, cette maison en triplex de 126 m2 habitables offre un cadre de vie fonctionnel, sain et évolutif. Entièrement entretenue et bénéficiant d’une toiture refaite récemment, elle ne nécessite aucun travaux immédiat.
Intérieur
Le rez-de-chaussée propose un séjour chaleureux équipé d’un poêle à granulés assurant le chauffage principal. L’espace de vie est agréable, lumineux et pratique au quotidien. À l’étage, deux chambres spacieuses ainsi qu’une salle d’eau récente viennent compléter le niveau nuit. Le chauffage électrique dans les chambres garantit un confort maîtrisé.
Potentiel d’évolution
Les combles sont aménageables et permettent la création d’une ou plusieurs pièces supplémentaires selon vos projets : bureau, chambre, salle de jeux ou espace détente. Une véritable opportunité d’optimisation et de valorisation.
Dépendances et extérieurs
La maison dispose d’un garage/dépôt offrant une belle hauteur, idéal pour du stockage ou un atelier. Un carport extérieur, dont la toiture est à revoir, peut facilement être transformé en terrasse couverte ou en espace extérieur aménagé. Un terrain non attenant d’environ 200 m2 complète également ce bien, parfait pour un jardin, un potager ou une zone de stationnement supplémentaire.
Atouts


Maison saine et bien entretenue


Toiture récente


Aucun travaux à prévoir


Combles aménageables


Garage + carport


Terrain de 200 m2


Environnement calme


 
Cette maison offre à la fois un confort prêt à vivre et un réel potentiel d’évolution, une combinaison rarement disponible sur le marché. Pour toute visite ou information complémentaire, veuillez contacter votre négociateur immobilier, Arnaud Grillet.
Cette annonce vous est proposée par GRILLET ARNAUD - EI - NoRSAC: 879523009, Enregistré au Greffe du tribunal de commerce de saint Etienne Les informations sur les risques auxquels le bien est exposé sont disponibles sur le site Géorisques : www.georisques.gouv.fr
Voir plus

Référence: 2381
Honoraires à la charge du vendeur.
Barème des honoraires
DPE
A
B
C
D
E
F
G
GES
A
B
C
D
E
F
G

Prêt immobilier

Vous souhaitez connaître votre capacité d’emprunt et trouver le meilleur crédit immobilier ?
Réaliser une simulation gratuite

Maison à SAINT-BARTHELEMY-LESTRA
Maison à SAINT-BARTHELEMY-LESTRA
Maison à SAINT-BARTHELEMY-LESTRA
Maison à SAINT-BARTHELEMY-LESTRA
Maison à SAINT-BARTHELEMY-LESTRA
Maison à SAINT-BARTHELEMY-LESTRA
Maison à SAINT-BARTHELEMY-LESTRA
Maison à SAINT-BARTHELEMY-LESTRA
Maison à SAINT-BARTHELEMY-LESTRA
Maison à SAINT-BARTHELEMY-LESTRA
Maison à SAINT-BARTHELEMY-LESTRA
Maison à SAINT-BARTHELEMY-LESTRA
Maison à SAINT-BARTHELEMY-LESTRA
Maison à SAINT-BARTHELEMY-LESTRA
Maison à SAINT-BARTHELEMY-LESTRA
Maison à SAINT-BARTHELEMY-LESTRA
Maison à SAINT-BARTHELEMY-LESTRA
Ce site est protégé par reCAPTCHA la Politique de confidentialité et les Conditions d’utilisation de Google s’appliquent.
Obtenir un prêt immobilier au meilleur taux ?

En poursuivant votre navigation sans modifier vos paramètres, vous acceptez l'utilisation de cookies susceptibles de réaliser des statistiques de visite. Cliquez ici pour plus d'informations