Bénéficiez des services de nos partenaires locaux soigneusement sélectionnés
pour vous accompagner dans votre parcours d'achat immobilier

Studio atypique - lumineux avec jardin privatif ferme de chessy proche disneyland & val d’europe

— Chessy 77700 —
299 900 €
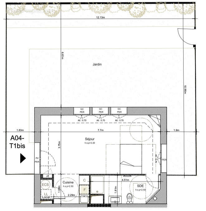
41 m²
1 pièce

Nos partenaires locaux
Découvrez un havre de paix alliant charme historique et confort moderne au cœur de Chessy Au sein d’une ferme briarde du XVIIIe siècle entièrement réhabilitée, cet appartement de 41m2 vous séduira par son espace optimisé, sa luminosité exceptionnelle et son jardin privatif de 96 m2,
Situé au rez-de-chaussée, il offre une entrée individuelle, une cuisine équipée ouverte sur le séjour, une salle d’eau spacieuse, et un local buanderie Hauteur sous plafond de 3,30m Salle d’eau de 7,20 m2 avec douche à l’italienne et rangements pratiques.Prestations haut de gamme : parquet contrecollé, menuiseries en bois double-vitrage, volets aluminium, et chauffage performant.
Sécurité renforcée : accès par vidéophone, porte palière sécurisée, et parking en sous-sol.Environnement préservé : à deux pas du parc classé du Bicheret (30 hectares) et des commodités du bourg de Chessy.
Chessy, ville dynamique et recherchée, allie proximité de Paris (30 km) et cadre verdoyant. Profitez d’une localisation stratégique : 10 min à pied du bourg et de ses commerces de proximité.
Accès rapide à l’A4 et A104, gares RER A (Marne-la-Vallée Chessy) et TGV.
Proche des pôles économiques (Disneyland Paris, Val d’Europe, Université Gustave Eiffel).
Éligible au prêt à taux zéro (PTZ)
Bénéficiez de frais de notaire réduits- Pas de frais d’agence - Photos non contractuelles
Voir plus

Barème des honoraires

Prêt immobilier

Vous souhaitez connaître votre capacité d’emprunt et trouver le meilleur crédit immobilier ?
Réaliser une simulation gratuite

Appartement à CHESSY
Appartement à CHESSY
Appartement à CHESSY
Ce site est protégé par reCAPTCHA la Politique de confidentialité et les Conditions d’utilisation de Google s’appliquent.
Obtenir un prêt immobilier au meilleur taux ?

En poursuivant votre navigation sans modifier vos paramètres, vous acceptez l'utilisation de cookies susceptibles de réaliser des statistiques de visite. Cliquez ici pour plus d'informations