Bénéficiez des services de nos partenaires locaux soigneusement sélectionnés
pour vous accompagner dans votre parcours d'achat immobilier

Brienne-le-château immeuble mixte avec grand appartement et local commercial

— Braux 10500 —
139 000 €
206 m² / 134 m²
8 pièces
parkingbalcon/terrassejardin

Nos partenaires locaux
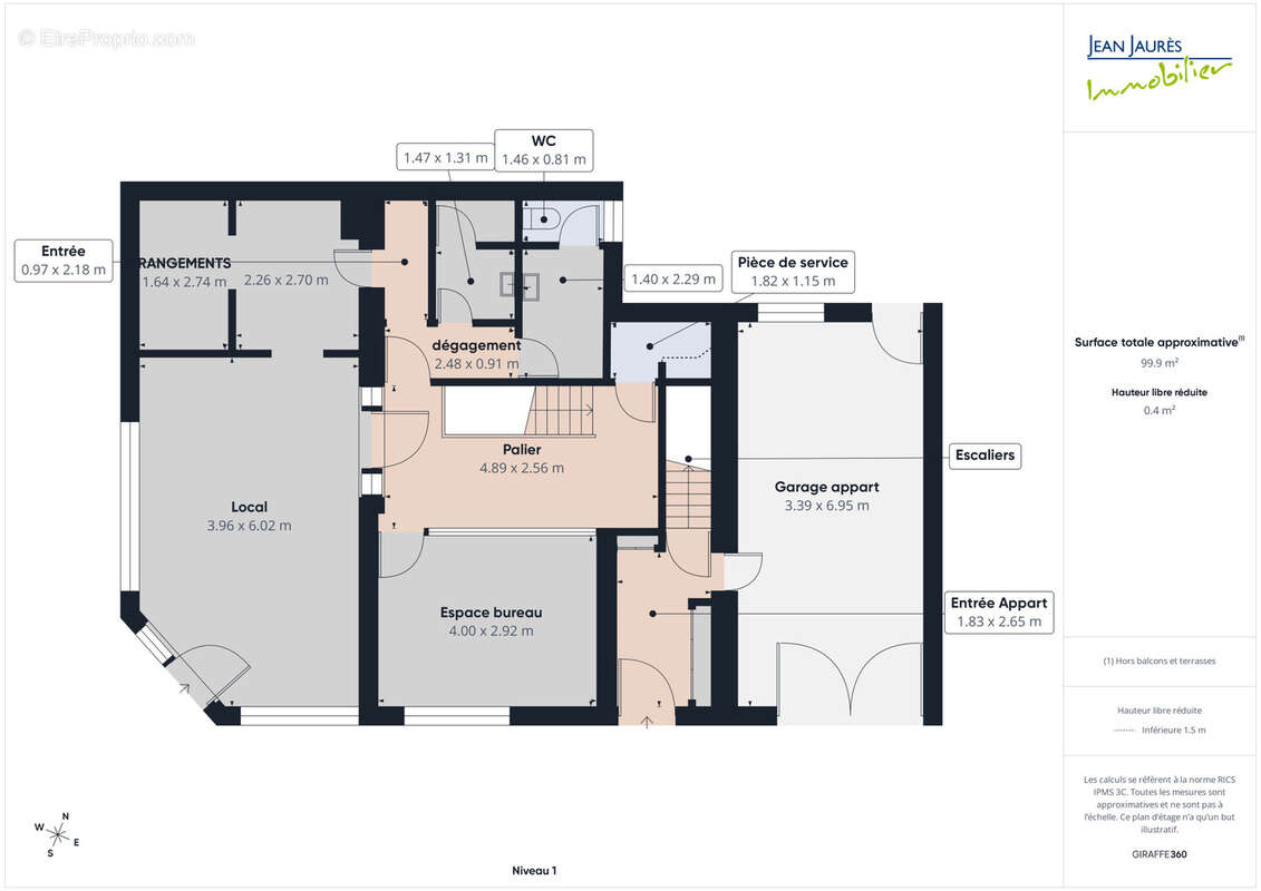
À Brienne-le-Château, cet immeuble de caractère constitue une véritable opportunité pour un investisseur ou un professionnel souhaitant associer activité et habitation. L’ensemble se compose d’un grand appartement indépendant d'environ 98 m2 l’étage et d’un local commercial en rez-de-chaussée, chacun disposant de ses propres accès.
Accessible par une entrée indépendante, cet appartement lumineux de 98 m2 offre un salon, un séjour, une cuisine fonctionnelle, trois chambres, une salle de bains et deux WC. Il bénéficie également d’une cour privative ainsi que d’un garage. Le chauffage individuel au gaz est indépendant du local.
Au rez-de-chaussée le local commercial. Parfait pour une activité professionnelle, il bénéficie : d’une excellente visibilité avec deux grandes vitrines, d’un aménagement fonctionnel comprenant deux bureaux, deux WC et un espace repas, d’une vaste cave en sous-sol faisant office de réserve/chaufferie. Chauffage et compteurs indépendants. Pour toute information complémentaire ou pour organiser une visite, vous pouvez contacter Sandra Martin à l'agence.
Voir plus

Référence: 1880
Honoraires d'agence de 6.5% à la charge de l'acquéreur
Barème des honoraires
DPE
A
B
C
D
E
F
G
GES
A
B
C
D
E
F
G

Prêt immobilier

Vous souhaitez connaître votre capacité d’emprunt et trouver le meilleur crédit immobilier ?
Réaliser une simulation gratuite

Maison à BRAUX
Maison à BRAUX
Maison à BRAUX
Maison à BRAUX
Maison à BRAUX
Maison à BRAUX
Maison à BRAUX
Maison à BRAUX
Maison à BRAUX
Maison à BRAUX
Maison à BRAUX
Maison à BRAUX
Maison à BRAUX
Maison à BRAUX
Maison à BRAUX
Maison à BRAUX
Maison à BRAUX
Maison à BRAUX
Maison à BRAUX
Maison à BRAUX
Maison à BRAUX
Ce site est protégé par reCAPTCHA la Politique de confidentialité et les Conditions d’utilisation de Google s’appliquent.
Obtenir un prêt immobilier au meilleur taux ?

En poursuivant votre navigation sans modifier vos paramètres, vous acceptez l'utilisation de cookies susceptibles de réaliser des statistiques de visite. Cliquez ici pour plus d'informations